Dane techniczne
- Powierzchnia użytkowa 134.41 m²
- Powierzchnia zabudowy 151.99 m²
- Kubatura 474.54 m³
- Kąt nachylenia dachu 37.00°
- Powierzchnia dachu 248.95 m²
- Wysokość budynku 8.54 m
- Min. wymiary działki 22.90x20.50 m
- Garaż 19.31 m²
- Pracownia Archipelag
Technologia budowy
Dom zaprojektowano w technologii murowej ze stropem gęstożebrowym. Schody wewnętrzne drewniane. Dach o konstrukcji drewnianej pokryto dachówką cementową lub ceramiczną. Elewację wykończono tynkiem mineralnym cokół - okładziną kamienną. Stolarka okienna drewniana. Okna połaciowe.
Opis
Dom parterowy z użytkowym poddaszem niepodpiwniczony z wbudowanym garażem przeznaczony dla 4-osobowej rodziny. Bryła domu prosta dach dwuspadowy. Na parterze część gospodarcza z garażem - po prawej stronie holu po stronie lewej pokój dzienny z wyjściem na zadaszony taras gabinet oraz schody na poddasze. W części środkowej parteru znajduje się kuchnia z jadalnią i osobnym wyjściem do ogrodu. Poddasze to strefa nocna domu składająca się z trzech sypialń łazienki garderoby i niewielkiego pomieszczenia gospodarczego.
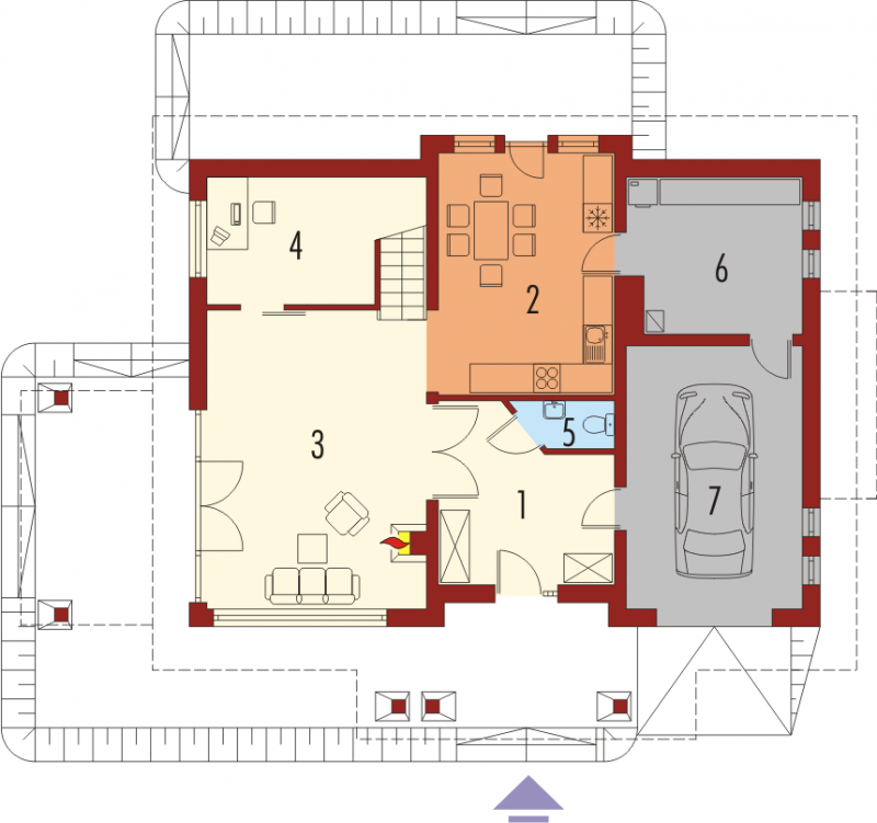
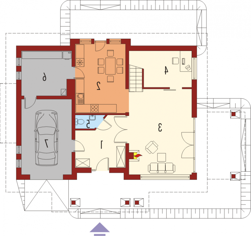
Rzuty
PARTER
- Wiatrołap 11.69 m2
- Kuchnia z jadalnią 18.17 m2
- Pokój dzienny 27.64 m2
- Gabinet 9.07 m2
- Toaleta 1.73 m2
- Kotłownia 11.31 m2
- Garaż 19.31 m2
PODDASZE
- Korytarz 11.42 m2
- Sypialnia 13.57 m2
- Sypialnia 12.38 m2
- Sypialnia 10.69 m2
- Łazienka 8.08 m2
- Garderoba 7.61 m2
- Pom. gospodarcze 2.36 m2
Rzuty
PARTER
- Wiatrołap 11.69 m2
- Kuchnia z jadalnią 18.17 m2
- Pokój dzienny 27.64 m2
- Gabinet 9.07 m2
- Toaleta 1.73 m2
- Kotłownia 11.31 m2
- Garaż 19.31 m2
PODDASZE
- Korytarz 11.42 m2
- Sypialnia 13.57 m2
- Sypialnia 12.38 m2
- Sypialnia 10.69 m2
- Łazienka 8.08 m2
- Garderoba 7.61 m2
- Pom. gospodarcze 2.36 m2
Dbamy o swoich Klientów, jak nikt inny!
Do każdego projektu zakupionego za pośrednictwem serwisu kreoDOM.pl otrzymasz książeczkę z rabatami na zakupy w firmach Komfort, Fachowiec, Domino Łazienki, Komandor, Witek Home i innych. Książeczka na pewno okaże się przydatna podczas urządzania Twojego wymarzonego domu!
Książeczka z rabatami do takich firm jak: Komfort, Domino Łazienki, Fachowiec, Vox, Komandor, Witek Home i innych
Gwarancja
bezpiecznych zakupów
Dodatkowe pakiety projektowe
- Kosztorys inwestorski cena ustalana indywidualnie
- Wentylacja mechaniczna z rekuperacją 700,00 zł
- Wentylacja mechaniczna + GPWC 700,00 zł
- Kolektory Słoneczne 400,00 zł
- Panele Fotowoltaiczne 400,00 zł
- Pompa Ciepła 500,00 zł
- Kominek z DGP 400,00 zł
- Biologiczna oczyszczalnia ścieków 150,00 zł
- Centralny Odkurzacz 300,00 zł
- Szambo przydomowe 200,00 zł
- Dodatkowy egzemplarz projektu 150,00 zł