Dane techniczne
- Powierzchnia użytkowa 95.68 m²
- Powierzchnia zabudowy 76.86 m²
- Kubatura 279.62 m³
- Kąt nachylenia dachu 45.00°
- Powierzchnia dachu 151.00 m²
- Wysokość budynku 8.22 m
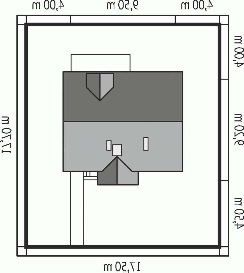
- Min. wymiary działki 17.50x17.70 m
- Pracownia Archipelag
Technologia budowy
Dom zaprojektowano w technologii murowej ze stropem żelbetowym. Schody wewnętrzne drewniane. Dach o konstrukcji drewnianej kryty dachówką cementową IBF. Elewację wykonano z tynku strukturalnego, okładzinę cokołu z płytek klinkierowych. Stolarka okienna drewniana.
Opis
Dom parterowy z użytkowym poddaszem, niepodpiwniczony, przeznaczony dla 4-osobowej rodziny. Posiada prostą konstrukcję i przejrzysty układ funkcjonalny. Strefę dzienną na parterze stanowi pokój dzienny, kuchnia i dodatkowy pokój gościnny, strefę nocną – na poddaszu – trzy sypialnie, garderoba i łazienka. Dzięki prostej bryle koszt budowy domu jest niewysoki.
Rzuty
PARTER
- Wiatrołap 2.23 m2
- Hol 6.75 m2
- Kuchnia 9.00 m2
- Pokój dzienny 18.11 m2
- Pokój 13.00 m2
- Łazienka 3.32 m2
- Kotłownia 2.70 m2
PODDASZE
- Korytarz 3.77 m2
- Sypialnia 7.67 m2
- Sypialnia 11.48 m2
- Sypialnia 10.03 m2
- Łazienka 3.31 m2
- Garderoba 7.01 m2
Rzuty
PARTER
- Wiatrołap 2.23 m2
- Hol 6.75 m2
- Kuchnia 9.00 m2
- Pokój dzienny 18.11 m2
- Pokój 13.00 m2
- Łazienka 3.32 m2
- Kotłownia 2.70 m2
PODDASZE
- Korytarz 3.77 m2
- Sypialnia 7.67 m2
- Sypialnia 11.48 m2
- Sypialnia 10.03 m2
- Łazienka 3.31 m2
- Garderoba 7.01 m2
Dbamy o swoich Klientów, jak nikt inny!
Do każdego projektu zakupionego za pośrednictwem serwisu kreoDOM.pl otrzymasz książeczkę z rabatami na zakupy w firmach Komfort, Fachowiec, Domino Łazienki, Komandor, Witek Home i innych. Książeczka na pewno okaże się przydatna podczas urządzania Twojego wymarzonego domu!
Książeczka z rabatami do takich firm jak: Komfort, Domino Łazienki, Fachowiec, Vox, Komandor, Witek Home i innych
Gwarancja
bezpiecznych zakupów
Dodatkowe pakiety projektowe
- Kosztorys inwestorski cena ustalana indywidualnie
- Wentylacja mechaniczna z rekuperacją 700,00 zł
- Wentylacja mechaniczna + GPWC 700,00 zł
- Kolektory Słoneczne 400,00 zł
- Panele Fotowoltaiczne 400,00 zł
- Pompa Ciepła 500,00 zł
- Kominek z DGP 400,00 zł
- Biologiczna oczyszczalnia ścieków 150,00 zł
- Centralny Odkurzacz 300,00 zł
- Szambo przydomowe 200,00 zł
- Dodatkowy egzemplarz projektu 150,00 zł