Ściany:
Budynek został zaprojektowany w technologii murowanej ściany jednowarstwowej z bloczka gazobetonowego grubości 36,5cm.
Stropy:
Strop gęstożebrowy.
Wykończenie:
Elewacje wykonano z tynku strukturalnego, cokół z cegły klinkierowej. Stolarka okienna drewniana lub PCV.
Dach
Dach o konstrukcji drewnianej kryty dachówką ceramiczną.
Koszty budowy na dzień:
2008-06-10
Stan surowy zamknięty:
194416.20 PLN
Stan surowy otwarty:
145812.16 PLN
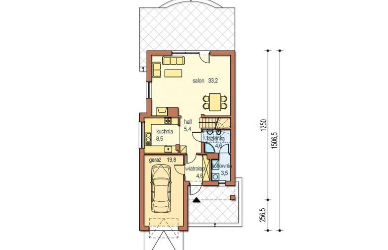
Dom wolno stojący, parterowy z użytkowym poddaszem, nie podpiwniczony, przeznaczony dla 4-5 osobowej rodziny. Czytelny układ pomieszczeń oraz niewielka powierzchnia komunikacji sprawiają, że dom jest bardzo wygodny i funkcjonalny Na parterze znajduje się pokój dzienny z kominkiem i aneksem jadalnym, kuchnia, dodatkowy pokój, WC, pomieszczenie techniczne, które może pełnić także funkcję pralni oraz jednostanowiskowy garaż. Na poddaszu znajdują się trzy sypialnie, łazienka i pomieszczenie gospodarcze-schowek.
Dom może być wybudowany na wąskiej działce- umożliwia to jego mała szerokość, a ponieważ posiada ścianę boczną bez okien może być zbliżony na 3m od granicy działki.
Istnieje również możliwość wprowadzenia przez inwestora zmian funkcjonalnych bez konieczności wprowadzania zmian w konstrukcji.