Budynek wykonany w technologii tradycyjnej. Ściany warstwowe grubości 36cm, murowane z bloczków z betonu komórkowego grubości 24cm, ocieplone styropianem grubości 12cm. Ściany wewnętrzne z bloczków z betonu komórkowego grubości 24cm i 12cm. Komin z cegły ceramicznej pełnej. Słupy i podciągi żelbetowe. Strop gęstożebrowy „TERIVA 6,0”. Więźba dachowa dwuspadowa, drewniana, pokryta blachodachówką.
PROJEKT:
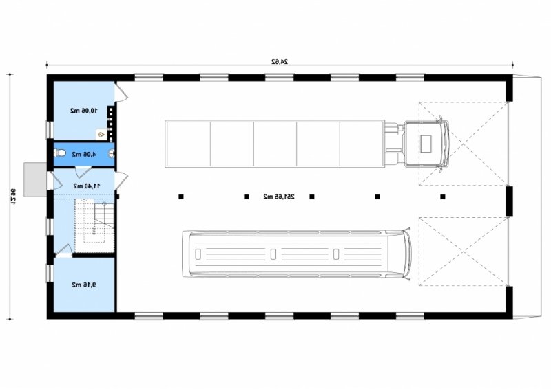
Projekt budynku mieszkalnego, parterowego, niepodpiwniczonego z poddaszem mieszkalnym, kuchnią, jadalnią, salonem, czterema pokojami, trzema łazienkami, garażem dwustanowiskowym, przeznaczonym dla samochodów ciężarowych, i antresolą. Do projektu dołączone jest zestawienie: stali, więźby dachowej oraz stolarki drzwiowej, jak również bezpłatna zgoda na dokonanie zmian.