Fundamenty- Tradycyjne - na ławach fundamentowych
Ściany - Dwuwarstwowe - pustak ceramiczny 25 cm + styropian 20 cm
Stropy - Żelbetowe wylewane
Dach - Tradycyjna więźba dachowa pokryta dachówką ceramiczną lub cementową
Elewacja - Kamień elewacyjny połączony z tynkiem
Ogrzewanie - Gazowe - piec kondensacyjny
Wentylacja - Mechaniczna z rekuperacją
| Stan surowy otwarty | 220 584 zł |
| Stan surowy zamknięty | 277 329 zł |
| Stan deweloperski | 531 549 zł |
| Stan deweloperski metodą gospodarczą | 372 085 zł |
HomeKONCEPT-37 to projekt piętrowego domu o nowoczesnej i wyrazistej stylistyce. Prostą, spójną bryłę urozmaica z zewnątrz okalające dom belkowanie oraz efektowna elewacja. Połączenie białego i grafitowego tynku z naturalnym kamieniem elewacyjnym nadaje całości wyjątkowej elegancji.
Wnętrze domu skrywa doskonale rozplanowane pomieszczenia. Na parterze zachwyci przestronna strefa dzienna w kształcie litery L, którą tworzy otwarty salon z kominkiem, jadalnia oraz kuchnia. Szczególną uwagę zwracają zaprojektowane tu piękne schody oraz duże okna. Zapewnią one maksymalne doświetlenie wnętrza oraz optycznie powiększą przestrzeń, otwierając przed domownikami panoramę pięknego ogrodu.
Przestronny gabinet z wyjściem na taras doskonale sprawdzi się jako pracownia lub pokój dla gości.
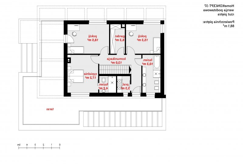
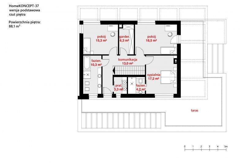
Na piętrze wydzielone zostały trzy duże pokoje, w tym sypialnia małżeńska z własną łazienką. Znajduje się tu również duża garderoba, druga łazienka oraz pralnia. Z części komunikacyjnej można dostać się na przyjemny, przestronny taras osłonięty białą pergolą.
Warto wspomnieć, że zaprojektowany tu dach, o kącie nachylenia 30 stopni, doskonale wpasuje się w wymagania większości planów miejscowych.