Ściany:
Budynek został zaprojektowany w technologii murowanej ściany jednowarstwowej z bloczka gazobetonowego grubości 36,5cm.
Stropy:
Strop gęstożebrowym.
Wykończenie:
Elewacje wykonano z tynku strukturalnego, cokół z cegły lub okładziny klinkierowej. Stolarka okienna drewniana lub PCV.
Dach
Dach o konstrukcji drewnianej kryty dachówką ceramiczną.
Koszty budowy na dzień:
2008-06-10
Stan surowy zamknięty:
202435.20 PLN
Stan surowy otwarty:
151826.41 PLN
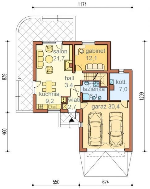
Jest to nieduży, ale wygodny dom bez podpiwniczenia z użytkowym poddaszem i wbudowanym garażem na dwa stanowiska, przeznaczony dla 4-5 osobowej rodziny. Dom ma zwartą bryłę - na planie prostokąta z wysuniętym garażem. Małe skomplikowanie bryły i przekrycie dwuspadowym dachem sprawia, że jest tani i łatwy w realizacji.
Dom może być zbliżony na 3m od granicy działki ścianą garażu, która nie posiada okien. Istnieje możliwość zrealizowania budynku w zabudowie bliźniaczej.
Część dzienna na parterze składa się z wiatrołapu, hallu, kuchni z jadalnią oraz pokoju dziennego, gabinetu i łazienki. Kotłownia znajduje się w pomieszczeniu za garażem.
Część nocną na poddaszu tworzą: trzy sypialnie, hall i wygodna łazienka. Nad garażem znajduje się pomieszczenie które może być wykorzystywane jako pralnia, suszarnia lub garderoba. Dwie sypialnie posiadają duże przeszklenia z wyjściem na balkon, trzecia sypialnia i łazienka będą doświetlone za pomocą okien połaciowych.