Dane techniczne
- Powierzchnia użytkowa 249.57 m²
- Powierzchnia zabudowy 260.97 m²
- Kubatura 783.31 m³
- Kąt nachylenia dachu 50.00°
- Powierzchnia dachu 435.73 m²
- Wysokość budynku 9.50 m
- Min. wymiary działki 31.20x29.60 m
- Garaż 35.70 m²
- Pracownia Archipelag
Technologia budowy
Dom zaprojektowano w technologii murowej ze stropem gęstożebrowym. Schody wewnętrzne drewniane. Dach o konstrukcji drewnianej kryty dachówką ceramiczną (karpiówką). Elewację wykonano z tynku strukturalnego i okładziny klinkierowej. Stolarka okienna drewniana.
Opis
Dom parterowy z poddaszem użytkowym, niepodpiwniczony, z wbudowanym garażem dwustanowiskowym, przeznaczony dla 4-6-osobowej rodziny. Jest to budynek o eleganckiej bryle oraz funkcjonalnym i czytelnym rozplanowaniu pomieszczeń. Strefę dzienną tworzy kuchnia z wydzieloną spiżarnią, jadalnia oraz salon. Dodatkowo na parterze znajduje się gabinet, łazienka, siłownia, a także pomieszczenie gospodarcze. Na poddaszu przewidziano trzy sypialnie z garderobami oraz łazienkę.
Rzuty
PARTER
- Wiatrołap 9.65 m2
- Hol 19.05 m2
- Kuchnia 18.19 m2
- Spiżarnia 4.30 m2
- Jadalnia 16.41 m2
- Pokój dzienny 36.60 m2
- Łazienka 4.40 m2
- Pokój 16.68 m2
- Siłownia 17.49 m2
- Pom. gospodarcze 4.07 m2
- Pom. gospodarcze 11.72 m2
- Garaż 35.70 m2
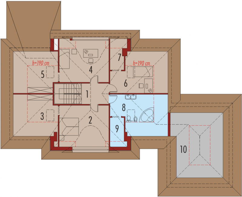
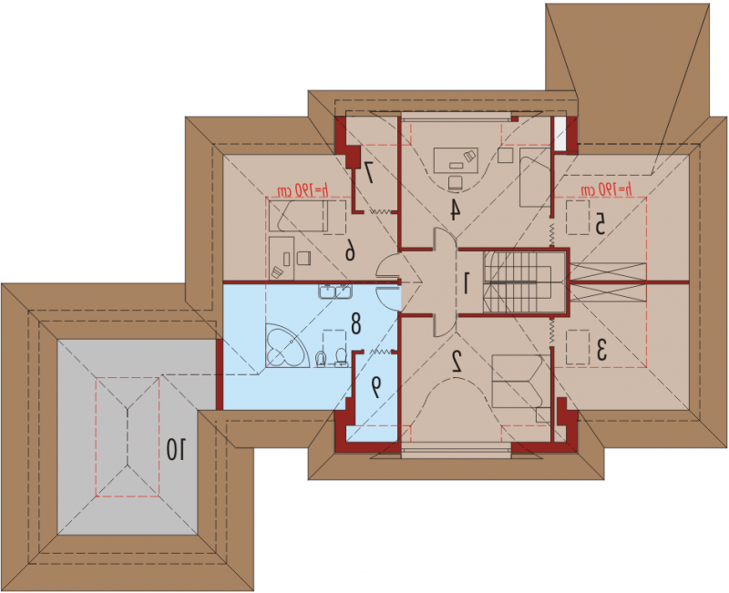
PODDASZE
- Korytarz 7.07 m2
- Sypialnia 24.46 m2
- Garderoba 6.07 m2
- Pokój 24.46 m2
- Garderoba 6.07 m2
- Pokój 9.20 m2
- Garderoba 2.24 m2
- Łazienka 9.20 m2
- Garderoba 2.24 m2
- Strych 6.75 m2
Rzuty
PARTER
- Wiatrołap 9.65 m2
- Hol 19.05 m2
- Kuchnia 18.19 m2
- Spiżarnia 4.30 m2
- Jadalnia 16.41 m2
- Pokój dzienny 36.60 m2
- Łazienka 4.40 m2
- Pokój 16.68 m2
- Siłownia 17.49 m2
- Pom. gospodarcze 4.07 m2
- Pom. gospodarcze 11.72 m2
- Garaż 35.70 m2
PODDASZE
- Korytarz 7.07 m2
- Sypialnia 24.46 m2
- Garderoba 6.07 m2
- Pokój 24.46 m2
- Garderoba 6.07 m2
- Pokój 9.20 m2
- Garderoba 2.24 m2
- Łazienka 9.20 m2
- Garderoba 2.24 m2
- Strych 6.75 m2
Dbamy o swoich Klientów, jak nikt inny!
Do każdego projektu zakupionego za pośrednictwem serwisu kreoDOM.pl otrzymasz książeczkę z rabatami na zakupy w firmach Komfort, Fachowiec, Domino Łazienki, Komandor, Witek Home i innych. Książeczka na pewno okaże się przydatna podczas urządzania Twojego wymarzonego domu!
Książeczka z rabatami do takich firm jak: Komfort, Domino Łazienki, Fachowiec, Vox, Komandor, Witek Home i innych
Gwarancja
bezpiecznych zakupów
Dodatkowe pakiety projektowe
- Kosztorys inwestorski cena ustalana indywidualnie
- Wentylacja mechaniczna z rekuperacją 700,00 zł
- Wentylacja mechaniczna + GPWC 700,00 zł
- Kolektory Słoneczne 400,00 zł
- Panele Fotowoltaiczne 400,00 zł
- Pompa Ciepła 500,00 zł
- Kominek z DGP 400,00 zł
- Biologiczna oczyszczalnia ścieków 150,00 zł
- Centralny Odkurzacz 300,00 zł
- Szambo przydomowe 200,00 zł
- Dodatkowy egzemplarz projektu 150,00 zł