Dane techniczne
- Powierzchnia użytkowa 297.27 m²
- Powierzchnia zabudowy 455.62 m²
- Kubatura 1427.96 m³
- Kąt nachylenia dachu 35.00°
- Powierzchnia dachu 756.17 m²
- Wysokość budynku 9.00 m
- Min. wymiary działki 34.70x45.20 m
- Garaż 61.50 m²
- Pracownia LK & Projekt
Technologia budowy
- Wentylacja: mechaniczna z rekuperacją
- Sposób ogrzewania: pompa ciepła, ogrzewanie podłogowe, wspomaganie CWU kolektorami słonecznymi
- Strop: żelbetowy
- Konstrukcja dachu: drewniana, ocieplona wełną mineralną o gr.40 cm firmy Rockwool
- Pokrycie dachu: dachówką ceramiczną 'Koramic' firmy Wienerberger, płaska Actua
- Elewacje: wykończone tynkiem silikonowym oraz łupkiem
- Okna i drzwi balkonowe: aluminiowe system Reynaers
- Ściany wewnętrzne: z pustaków ceramicznych 'Porotherm P+W' o gr.25 i 11,5 cm, firmy Wienerberger
- Ściany zewnętrzne: z pustaków ceramicznych 'Porotherm P+W' o gr.30 cm firmy Wienerberger, ocieplone styropianem 'Gold fasada' o gr.20 cm firmy Termo Organika oraz wełną mineralną 'Rockton' o łącznej gr.25 cm firmy Rockwool
- Ławy fundamentowe: żelbetowe
- Ściany fundamentowe: z pustaków szalunkowych o gr.30 cm, ocieplone styropianem 'Gold fundament' o gr.20 cm firmy Termo Organika
- Stan na kwartał: IV 2013 zł.
- Roboty budowlane stanu zerowego: 166 132.25 zł.
- Stan surowy zadaszony: 415 208.70 zł.
- Stolarka: 262 434.87 zł.
- Roboty budowlane stanu wykończeniowego: 598 030.95 zł.
- Instalacje: 369 700.00 zł.
- Koszt budowy ogółem (bez VAT): 1 811 506.77 zł.
Opis
Projekt domu jednorodzinnego z trzystaniskowym garażem.
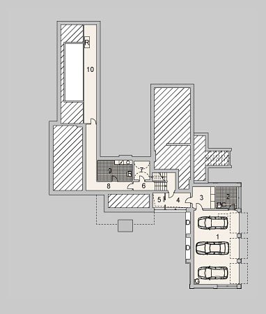
Rzuty
- Garaż 61,50 m2
- Pomieszczenie pompy ciepła 8,83 m2
- Pomieszczenie gospodarcze 9,40 m2
- Przewiązka 7,21 m2
- Pomieszczenie gospodarcze 2 3,47 m2
- Komunikacja 3,75 m2
- Piwniczka na wino 5,71 m2
- Komunikacja 2 19,96 m2
- Pralnia 13,69 m2
- Pomieszczenie techniczne basenu 23,98 m2
- Sień 11,11 m2
- Hall 7,10 m2
- WC 4,46 m2
- Kuchnia z jadalnią 38,75 m2
- Pokój dzienny 48,65 m2
- Komunikacja 19,24 m2
- Sypialnia 24,70 m2
- Łazienka 10,64 m2
- Garderoba 8,62 m2
- Basen 61,51 m2
- Łazienka 2 3,46 m2
- Sauna 3,72 m2
- Komunikacja 12,53 m2
- Przedsionek 3,68 m2
- Łazienka 3,41 m2
- Pokój gościnny 14,30 m2
- Przedsionek 2 3,68 m2
- Łazienka 2 3,41 m2
- Pokój gościnny 2 14,30 m2
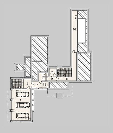
Rzuty
- Garaż 61,50 m2
- Pomieszczenie pompy ciepła 8,83 m2
- Pomieszczenie gospodarcze 9,40 m2
- Przewiązka 7,21 m2
- Pomieszczenie gospodarcze 2 3,47 m2
- Komunikacja 3,75 m2
- Piwniczka na wino 5,71 m2
- Komunikacja 2 19,96 m2
- Pralnia 13,69 m2
- Pomieszczenie techniczne basenu 23,98 m2
- Sień 11,11 m2
- Hall 7,10 m2
- WC 4,46 m2
- Kuchnia z jadalnią 38,75 m2
- Pokój dzienny 48,65 m2
- Komunikacja 19,24 m2
- Sypialnia 24,70 m2
- Łazienka 10,64 m2
- Garderoba 8,62 m2
- Basen 61,51 m2
- Łazienka 2 3,46 m2
- Sauna 3,72 m2
- Komunikacja 12,53 m2
- Przedsionek 3,68 m2
- Łazienka 3,41 m2
- Pokój gościnny 14,30 m2
- Przedsionek 2 3,68 m2
- Łazienka 2 3,41 m2
- Pokój gościnny 2 14,30 m2
Dbamy o swoich Klientów, jak nikt inny!
Do każdego projektu zakupionego za pośrednictwem serwisu kreoDOM.pl otrzymasz książeczkę z rabatami na zakupy w firmach Komfort, Fachowiec, Domino Łazienki, Komandor, Witek Home i innych. Książeczka na pewno okaże się przydatna podczas urządzania Twojego wymarzonego domu!
Książeczka z rabatami do takich firm jak: Komfort, Domino Łazienki, Fachowiec, Vox, Komandor, Witek Home i innych
Gwarancja
bezpiecznych zakupów
Dodatkowe pakiety projektowe
- Kosztorys inwestorski cena ustalana indywidualnie
- Kolektory słoneczne cena ustalana indywidualnie
- Kominek z DGP cena ustalana indywidualnie
- Wentylacja mechaniczna z rekuperacją cena ustalana indywidualnie
- Pompa ciepła cena ustalana indywidualnie