Dane techniczne
- Powierzchnia użytkowa 136.93 m²
- Powierzchnia zabudowy 122.00 m²
- Kubatura 412.00 m³
- Kąt nachylenia dachu 42.00°
- Powierzchnia dachu 198.00 m²
- Wysokość budynku 8.56 m
- Min. wymiary działki 21.80x16.75 m
- Pracownia LK & Projekt
Technologia budowy
- Ławy fundamentowe: żelbetowe
- Ściany fundamentowe: betonowe gr. 30 cm ocieplone styropianem ekstrudowanym
- Ściany zewnętrzne: z bloczków Silka gr. 24 cm, ocieplone wełną mineralną firmy Rockwool gr. 18cm
- Ściany wewnętrzne: nośne z bloczków Silka gr. 18 cm oraz działowe z bloczków Silka gr.12 cm
- Strop: żelbetowy
- Konstrukcja dachu: drewniana, ocieplona wełną mineralną gr. 36 cm firmy Rockwool
- Pokrycie dachu: dachówka ceramiczną 'Koramic' firmy 'Wienerberger'
- Elewacje: wykończone cegłą klinkierową, cokoły wykończone płytkami klinkierowymi
- Okna i drzwi balkonowe: drewniane
- Sposób ogrzewania: kocioł na gaz
- Wentylacja: mechaniczna
- Koszt orientacyjny (bez Vat): 310 786.00 zł.
Opis
Dom jednorodzinny, parterowy, z poddaszem użytkowym.
Rzuty
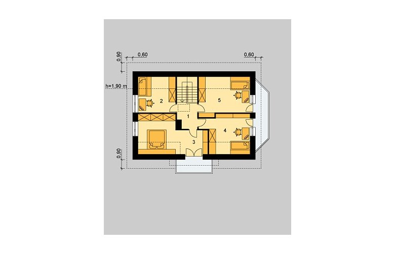
PODDASZE
Poddasze
1. Hall (5.11) 5.11m
2. Sypialnia (13.57) 9.53m
3. Sypialnia 2 (23.23) 18.56m
4. Sypialnia 3 (17.71) 13.24m
5. Sypialnia 4 (20.00) 14.45m
PARTER
Parter
1. Sień 5.26m
2. Hall 8.62m
3. Pokój dzienny 23.58m
4. Kuchnia 15.4m
5. Schowek 1.62m
6. Łazienka 10.8m
7. WC 1.68m
8. Pokój 9.08m
9. Kotłownia 6.36m
Rzuty
PODDASZE
Poddasze
1. Hall (5.11) 5.11m
2. Sypialnia (13.57) 9.53m
3. Sypialnia 2 (23.23) 18.56m
4. Sypialnia 3 (17.71) 13.24m
5. Sypialnia 4 (20.00) 14.45m
PARTER
Parter
1. Sień 5.26m
2. Hall 8.62m
3. Pokój dzienny 23.58m
4. Kuchnia 15.4m
5. Schowek 1.62m
6. Łazienka 10.8m
7. WC 1.68m
8. Pokój 9.08m
9. Kotłownia 6.36m
Dbamy o swoich Klientów, jak nikt inny!
Do każdego projektu zakupionego za pośrednictwem serwisu kreoDOM.pl otrzymasz książeczkę z rabatami na zakupy w firmach Komfort, Fachowiec, Domino Łazienki, Komandor, Witek Home i innych. Książeczka na pewno okaże się przydatna podczas urządzania Twojego wymarzonego domu!
Książeczka z rabatami do takich firm jak: Komfort, Domino Łazienki, Fachowiec, Vox, Komandor, Witek Home i innych
Gwarancja
bezpiecznych zakupów
Dodatkowe pakiety projektowe
- Kosztorys inwestorski cena ustalana indywidualnie
- Kolektory słoneczne cena ustalana indywidualnie
- Kominek z DGP cena ustalana indywidualnie
- Wentylacja mechaniczna z rekuperacją cena ustalana indywidualnie
- Pompa ciepła cena ustalana indywidualnie