Dane techniczne
- Powierzchnia użytkowa 100.13 m²
- Powierzchnia zabudowy 84.80 m²
- Kubatura 300.50 m³
- Kąt nachylenia dachu 42.00°
- Powierzchnia dachu 144.20 m²
- Wysokość budynku 8.62 m
- Min. wymiary działki 17.00x17.17 m
- Pracownia LK & Projekt
Technologia budowy
- Pokrycie dachu: dachówką ceramiczną Koramic firmy Wienerberger, Reńska Cosmo 15
- Elewacje: wykończone tynkiem silikonowym, cegłą klinkierową Terca Dresden firmy Wienerberger
- Konstrukcja dachu: drewniana docieplona wełną mineralną gr. 30 cm firmy Rockwool
- Strop: żelbetowy, monolityczny
- Ściany wewnętrzne: z pustaków ceramicznych Porotherm Profi gr. 25, 11.5 cm firmy Wienerberger
- Ściany zewnętrzne: z pustaków ceramicznych Porotherm Profi o gr.30 cm firmy Wienerberger ocieplone styropianem Gold Fasada o gr.20 cm firmy Termo Organika
- Ławy fundamentowe: żelbetowe
- Ściany fundamentowe: z pustaków szalunkowych o gr.30 cm, ocieplone styropianem Gold fundament o gr.20 cm
- Okna i drzwi balkonowe: PVC
- Sposób ogrzewania: kocioł na gaz
- Wentylacja: grawitacyjna
- Koszt orientacyjny (bez Vat): 226 820.00 zł.
Opis
Dom jednorodzinny, parterowy, z poddaszem użytkowym.
Rzuty
PARTER
Parter
1. Sień 4.17m
2. Hall 4.77m
3. Spiżarka 0.71m
4. Kuchnia 8.97m
5. Pokój dzienny z jadalnią 20.86m
6. Sypialnia 9.80m
7. Łazienka 4.23m
8. Kotłownia 3.48m
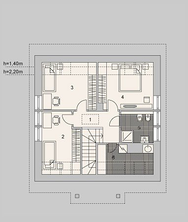
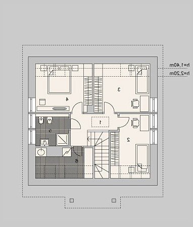
PODDASZE
Poddasze
1. Hall (5.03) 5.03m
2. Sypialnia (11.65) 9.62m
3. Sypialnia 2 (13.23) 10.89m
4. Sypialnia 3 (13.24) 10.84m
5. Łazienka (5.26) 5.26m
6. Pralnia (7.88) 5.43m
Rzuty
PARTER
Parter
1. Sień 4.17m
2. Hall 4.77m
3. Spiżarka 0.71m
4. Kuchnia 8.97m
5. Pokój dzienny z jadalnią 20.86m
6. Sypialnia 9.80m
7. Łazienka 4.23m
8. Kotłownia 3.48m
PODDASZE
Poddasze
1. Hall (5.03) 5.03m
2. Sypialnia (11.65) 9.62m
3. Sypialnia 2 (13.23) 10.89m
4. Sypialnia 3 (13.24) 10.84m
5. Łazienka (5.26) 5.26m
6. Pralnia (7.88) 5.43m
Dbamy o swoich Klientów, jak nikt inny!
Do każdego projektu zakupionego za pośrednictwem serwisu kreoDOM.pl otrzymasz książeczkę z rabatami na zakupy w firmach Komfort, Fachowiec, Domino Łazienki, Komandor, Witek Home i innych. Książeczka na pewno okaże się przydatna podczas urządzania Twojego wymarzonego domu!
Książeczka z rabatami do takich firm jak: Komfort, Domino Łazienki, Fachowiec, Vox, Komandor, Witek Home i innych
Gwarancja
bezpiecznych zakupów
Dodatkowe pakiety projektowe
- Kosztorys inwestorski cena ustalana indywidualnie
- Kolektory słoneczne cena ustalana indywidualnie
- Kominek z DGP cena ustalana indywidualnie
- Wentylacja mechaniczna z rekuperacją cena ustalana indywidualnie
- Pompa ciepła cena ustalana indywidualnie