Dane techniczne
- Powierzchnia użytkowa 158.80 m²
- Powierzchnia zabudowy 162.80 m²
- Kubatura 672.00 m³
- Kąt nachylenia dachu 39.00°
- Wysokość budynku 9.01 m
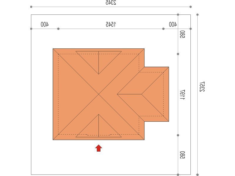
- Min. wymiary działki 23.57x23.45 m
- Garaż 19.50 m²
- Pracownia Dominanta
Technologia budowy
ściany zewnętrzne tradycyjne trzywarstwowe oraz dwuwarstwowe docieplone od zewnątrz
stropy żelbetowe wylewane
schody wewnętrzne ażurowe o konstrukcji stalowo-drewnianej
dach czterospadowy z pokryciem z dachówki ceramicznej, cementowej lub blaszanej
Opis
Charakterystyka domu:
* przestronny jednorodzinny dom parterowy, z użytkowym poddaszem, niepodpiwniczony;
* przeznaczony dla 4-5 osób
* na parterze zaprojektowano reprezentacyjny otwarty salon z kominkiem połączony z jadalnią, otwartą kuchnię, łazienkę oraz garaż, kotłownię i pomieszczenie gospodarcze, ciekawie zaprojektowana klatka schodowa
* na piętrze zaprojektowano 3 sypialnie ( sypialnia rodziców z własną łazienką ) oraz ogólnodostępną łazienkę i garderobę
Dbamy o swoich Klientów, jak nikt inny!
Do każdego projektu zakupionego za pośrednictwem serwisu kreoDOM.pl otrzymasz książeczkę z rabatami na zakupy w firmach Komfort, Fachowiec, Domino Łazienki, Komandor, Witek Home i innych. Książeczka na pewno okaże się przydatna podczas urządzania Twojego wymarzonego domu!
Książeczka z rabatami do takich firm jak: Komfort, Domino Łazienki, Fachowiec, Vox, Komandor, Witek Home i innych
Gwarancja
bezpiecznych zakupów
Dodatkowe pakiety projektowe
- Kosztorys inwestorski 400,00 zł