Ściany:
jednowarstwowe: bloczek gazobetonowy
Stropy:
gęstożebrowy
Dach
dachówka
Sadyba wersja B jest większą wersją popularnej Sadyby. Tak jak wersja podstawowa jest domem o niepowtarzalnym stylu, dodatkowo oferuje właścicielom większe poddasze. Dom jest niepodpiwniczony z użytkowym poddaszem i wbudowanym dużym dwustanowiskowym garażem, przeznaczonym dla 4-6 osobowej rodziny.
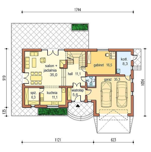
Dom posiada prosty układ - główna część domu na planie prostokąta z wysuniętym garażem dwustanowiskowym. Bryła domu jest zwarta i mało skomplikowana, przekryta czterospadowym dachem z wysuniętą częścią nad garażem. Konstrukcja dachu nie jest skomplikowana, a lukarny z dużymi oknami dodają domowi uroku.
Część dzienna na parterze składa sie z wiatrołapu, hallu z reprezentacyjną klatką schodową, dużej kuchni i spiżarni, jadalni i przestronnego salonu kominkowego, otwartego na ogród. Oprócz tego na parterze zlokalizowano gabinet, wc, kotłownię i garaż.
Część nocną na poddaszu tworzą: trzy duże, przestronne i jasne sypialnie, w tym dwie z własną garderobą, wygodna duża łazienka oraz pomieszczenie pralni i suszarni. Jedna z sypialni posiada balkon z dużym przeszkleniem. Centralnie zlokalizowana komunikacja jest wygodna, a klatka schodowa doświetlona oknami połaciowymi.
Wyższa ścianka kolankowa i jeden kąt dachu sprawiają że mamy do dyspozycji więcej pow. użytkowej przy zachowaniu zalet podstawowej Sadyby.
Budynek został zaprojektowany w technologii murowanej ściany jednowarstwowej z bloczka gazobetonowego grubości 36,5cm ze stropem gestożebrowym. Dach o konstrukcji drewnianej kryty dachówką ceramiczną. Elewacje wykonano z tynku strukturalnego, cokół i okładziny ścian z okładziny kamiennej lub cegły klinkierowej. Stolarka okienna drewniana lub PCV.
Dobór kolorystyki tynku, cegły i dachówki, wysunięte okapy sprawiają, że Sadyba będzie wyróżniała sie swym charakterystycznym wyglądem i zapewni właścicielom satysfakcje z posiadania dużego, wygodnego i reprezentacyjnego domu.
Można zamówić pełny kosztorys do tego projektu w cenie 300zł netto (366zł brutto).