Ściany:
Budynek został zaprojektowany w technologii murowanej ściany jednowarstwowej z bloczka gazobetonowego grubości 36,5cm
Stropy:
Strop gęstożebrowy.
Wykończenie:
Elewacje wykonano z tynku strukturalnego, cokół z okładziny kamiennej lub cegły klinkierowej. Stolarka okienna drewniana lub PCV.
Dach
Dach o konstrukcji drewnianej kryty dachówką ceramiczną.
Koszty budowy na dzień:
2008-06-10
Stan surowy zamknięty:
280219.50 PLN
Stan surowy otwarty:
210164.62 PLN
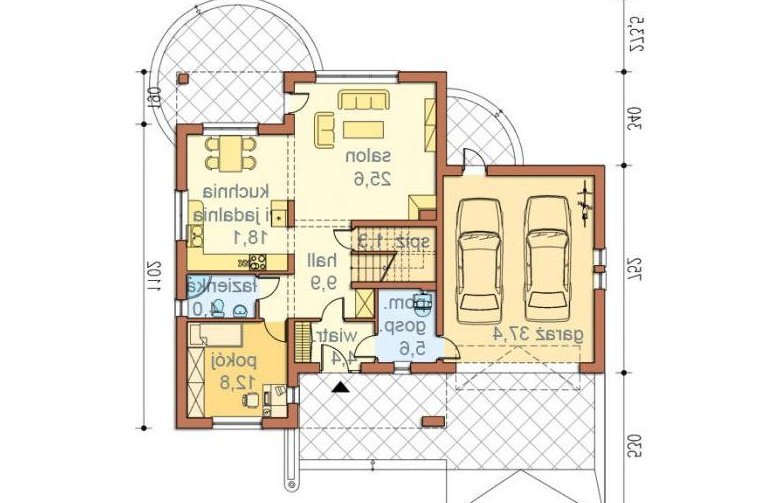
Jest to wygodny parterowy, niepodpiwniczony dom z użytkowym poddaszem i wbudowanym dwustanowiskowym garażem, przeznaczony dla 4-6 osobowej rodziny.
Zaletą domu jest prosty układ funkcjonalny i konstrukcyjny, co sprawia, że Syntia zapewniać będzie swym właścicielom komfort i wygodę, przy jednoczesnym bardzo atrakcyjnym wyglądzie.
Część dzienna na parterze składa się z przedsionka, hallu, gabinetu od strony wejściowej, dużej kuchni otwartej na salon i spiżarni zlokalizowanej pod schodami. Od frontu zlokalizowano wygodny jednostanowiskowy garaż i kotłownię.
Część nocną na poddaszu tworzą: cztery sypialnie i łazienka, doświetlone oknami połaciowymi. Istnieje możliwość
Istnieje możliwość zamiany usytuowania kuchni w miejsce gabinetu, a także innego podziału funkcjonalnego pomieszczeń na poddaszu, wygospodarowanie garderoby lub wykorzystanie pomieszczenia nad garażem na pralnię i suszarnię.