Dom ten proponujemy wybudować przy użyciu następujących materiałów: bloczki gazobetonowe, ocieplenia ze styropianu i wełny, strop Teriva, drewniana więźba pokryta dachówką, tynki zewnętrzne strukturalne na siatce, płytki klinkierowe na okładziny fragmentów ścian oraz okna drewniane lub z profili PVC.
Ewentualne zmiany w projekcie do wprowadzenia na etapie adaptacji.
Powierzchnia parteru:
1. wiatrołap - 4.4m2
2. hall - 12.5m2
3. pokój dzienny z jadalnią - 29.0m2
4. kuchnia - 9.1m2
5. łazienka - 2.9m2
6. spiżarka - 1.7m2
7. pom. gospodarcze - 6.2m2
8. garaż - 17.9m2
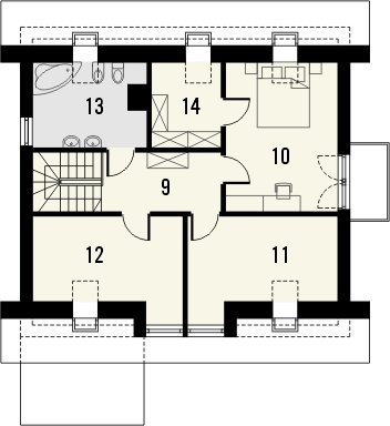
Powierzchnia piętra:
9. hall - 6.8m2
10. pokój - 14.6m2 (18.3m2)
11. pokój - 11.7m2 (15.4m2)
12. pokój - 11.7m2 (15.4m2)
13. łazienka - 7.6m2 (11.3m2)
14. garderoba - 4.9m2 (7.2m2)
Prosty i tani budynek wolnostojący z wysuniętym lekko do przodu garażem jednostanowiskowym.
Tetris to dom wolnostojący z wieloma miejscami na szafy, także wbudowane, oraz z garderobą przy największej sypialni na poddaszu.