Dane techniczne
- Powierzchnia użytkowa 184.46 m²
- Powierzchnia zabudowy 157.14 m²
- Kubatura 570.00 m³
- Kąt nachylenia dachu 40.00°
- Wysokość budynku 8.13 m
- Min. wymiary działki 24.37x18.02 m
- Garaż 18.80 m²
- Pracownia Architeka
Technologia budowy
ELEWACJE tynk strukturalny plus okładzina drewniana
STROP żelbetowy
ŚCIANY WEWNĘTRZNE bloczki gazobetonowe lub pustak ceramiczny / cegła dziurawka
ŚCIANY ZEWNETRZNE bloczki gazobetonowe lub pustak ceramiczny + ocieplenie styropian
POKRYCIE DACHU dachówka ceramiczna lub blachodachówka
Opis
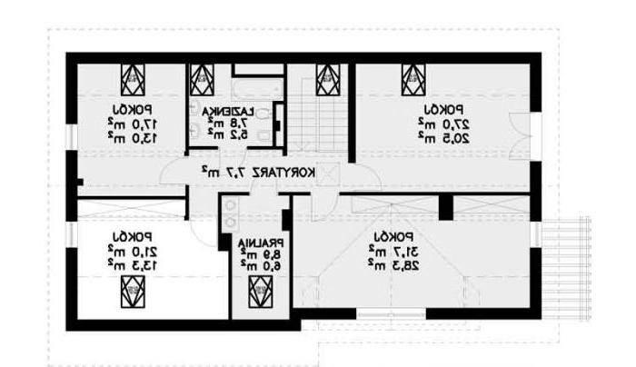
Wygodny dom dla dużej rodziny. Posiada cztery sypialnie na poddaszu oraz pokój na parterze mogący służyć jako dodatkowa sypialnia lub gabinet. Na poddaszu zlokalizowano łazienkę oraz pralnię. Parter to duży salon kuchnia i jadalnie wydzielone przesuwanymi drzwiami. Na parterze zlokalizowano również drugą łazienkę pomieszczenia pomocnicze oraz garaż. Całości dopełniają nowoczesne w wyrazie elewacje.
Dbamy o swoich Klientów, jak nikt inny!
Do każdego projektu zakupionego za pośrednictwem serwisu kreoDOM.pl otrzymasz książeczkę z rabatami na zakupy w firmach Komfort, Fachowiec, Domino Łazienki, Komandor, Witek Home i innych. Książeczka na pewno okaże się przydatna podczas urządzania Twojego wymarzonego domu!
Książeczka z rabatami do takich firm jak: Komfort, Domino Łazienki, Fachowiec, Vox, Komandor, Witek Home i innych
Gwarancja
bezpiecznych zakupów
Dodatkowe pakiety projektowe
- Kosztorys inwestorski bezpłatnie
- Dodatkowy egzemplarz projektu 250,00 zł