Dane techniczne
- Powierzchnia użytkowa 131.82 m²
- Powierzchnia zabudowy 104.82 m²
- Kubatura 411.39 m³
- Kąt nachylenia dachu 35.00°
- Powierzchnia dachu 149.59 m²
- Wysokość budynku 7.77 m
- Min. wymiary działki 20.84x15.34 m
- Garaż 20.76 m²
- Pracownia Studio Z500
Technologia budowy
Ściany: gazobeton, ceramika, silikaty
Dach: dachówka, blachodachówka
Strop: betonowy gęstożebrowy Teriva
Opis
Z154 dom o podłużnym rzucie z garażem w bryle i dachem dwuspadowy. Prosta bryła czynią go tanią i ekonomiczną inwestycją. Projekt wyróżnia się ciekawą, ceglaną elewacją, idealnie skomponowaną z jasnym odcieniem ścian. Wnętrze domu jest przestronne i funkcjonalne. Na szczególną uwagę zasługuje duży, jasny salon ze skrajnie usytuowanym kominkiem.
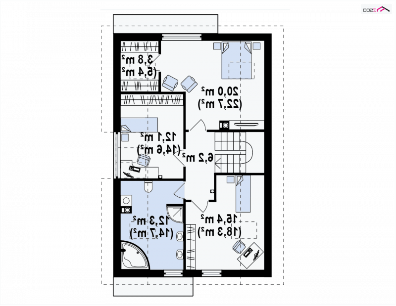
Doskonale łączy w sobie strefę wypoczynku z jadalnią. Otwarta kompozycja kuchni uzupełnia i optycznie powiększa całe pomieszczenie. W projekcie znajduje się również niewielka toaleta, podręczne pomieszczenie gospodarcze oraz jednostanowiskowy garaż . Piętro tworzą trzy wygodne sypialnie z komfortową łazienką. Sypialnia rodziców posiada osobną garderobę oraz wyjście na balkon z widokiem na ogród. Z154 ze względu na swą szerokość nadaje się również na wąska działkę.
Z154 to dom dla osób ceniących przestronne, jasne wnętrza i funkcjonalne rozwiązania
Dbamy o swoich Klientów, jak nikt inny!
Do każdego projektu zakupionego za pośrednictwem serwisu kreoDOM.pl otrzymasz książeczkę z rabatami na zakupy w firmach Komfort, Fachowiec, Domino Łazienki, Komandor, Witek Home i innych. Książeczka na pewno okaże się przydatna podczas urządzania Twojego wymarzonego domu!
Książeczka z rabatami do takich firm jak: Komfort, Domino Łazienki, Fachowiec, Vox, Komandor, Witek Home i innych
Gwarancja
bezpiecznych zakupów
Dodatkowe pakiety projektowe
- Kosztorys inwestorski 249,00zł
- Zestawienie materiałów 57,00 zł
- Wentylacja mechaniczna z rekuperacja 550,00 zł
- Pompa ciepła 250,00 zł
- Kotłownia na paliwo stałe zapytaj o dostępność
- Ogrzewanie podłogowe 350,00 zł
- Kolektory słoneczne 250,00 zł
- Przydomowa oczyszczalnia ścieków 350,00 zł
- Wersja elektroniczna projektu 197,00 zł
- Dodatkowy egzemplarz projektu 249,00 zł