Dane techniczne
- Powierzchnia użytkowa 99.40 m²
- Powierzchnia zabudowy 83.70 m²
- Kubatura 461.10 m³
- Kąt nachylenia dachu 40.00°
- Wysokość budynku 6.68 m
- Min. wymiary działki 19.00x17.00 m
- Pracownia MOJ-DOM
Technologia budowy
Fundamenty: żelbetowe, wylewane
Ściany zewnętrzne: z bali drewnianych gr. 12, 16, 20, 24, 30 cm. ocieplone od wewnątrz wełną mineralną, gr. 52 cm bez ocieplenia
Strop: belkowy, drewniany, otwarty
Schody: drewniane
Pokrycie dachu: gont bitumiczny
Opis
Budynek jednorodzinny, parterowy, z poddaszem mieszkalnym, niepodpiwniczony, 5 pokoi, kuchnia
Rzuty
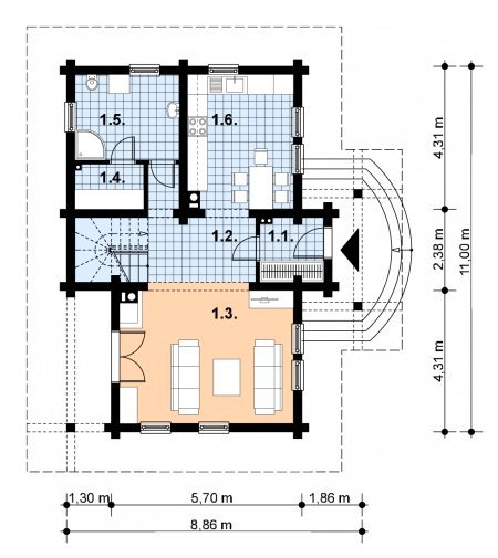
1. Wiatrołap3.6 m2
2. Hall10.2 m2
3. Pokój dzienny20.5 m2
4. Sauna2.8 m2
5. Łazienka7.9 m2
6. Kuchnia z jadalnią12.4 m2
1. Hall7.6 m2
2. Sypialnia12.7 m2
3. Sypialnia12.5 m2
4. Sypialnia12.8 m2
5. Sypialnia12.6 m2
6. Łazienka8.6 m2
Rzuty
1. Wiatrołap3.6 m2
2. Hall10.2 m2
3. Pokój dzienny20.5 m2
4. Sauna2.8 m2
5. Łazienka7.9 m2
6. Kuchnia z jadalnią12.4 m2
1. Hall7.6 m2
2. Sypialnia12.7 m2
3. Sypialnia12.5 m2
4. Sypialnia12.8 m2
5. Sypialnia12.6 m2
6. Łazienka8.6 m2
Dbamy o swoich Klientów, jak nikt inny!
Do każdego projektu zakupionego za pośrednictwem serwisu kreoDOM.pl otrzymasz książeczkę z rabatami na zakupy w firmach Komfort, Fachowiec, Domino Łazienki, Komandor, Witek Home i innych. Książeczka na pewno okaże się przydatna podczas urządzania Twojego wymarzonego domu!
Książeczka z rabatami do takich firm jak: Komfort, Domino Łazienki, Fachowiec, Vox, Komandor, Witek Home i innych
Gwarancja
bezpiecznych zakupów
Dodatkowe pakiety projektowe