Dane techniczne
- Powierzchnia użytkowa 130.10 m²
- Powierzchnia zabudowy 148.00 m²
- Kubatura 622.80 m³
- Kąt nachylenia dachu 25.00°
- Wysokość budynku 5.21 m
- Min. wymiary działki 23.50x20.50 m
- Pracownia MOJ-DOM
Technologia budowy
Fundamenty: żelbetowe, wylewane
Ściany zewnętrzne: szkieletowe, ocieplone wełną mineralną
Strop: belkowy, drewniany,zamknięty
Pokrycie dachu: blachodachówka
Opis
Budynek jednorodzinny, parterowy, niepodpiwniczony, 4 pokoje, kuchnia
Rzuty
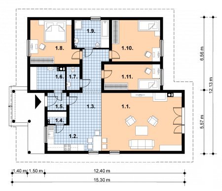
1. Pokój dzienny36.7 m2
2. Aneks kuchenny10.9 m2
3. Hall16.4 m2
4. Spiżarka1.8 m2
5. Wiatrołap2.9 m2
6. Kotłownia6.4 m2
7. WC2.6 m2
8. Sypialnia15.8 m2
9. Łazienka7.9 m2
10. Sypialnia16.7 m2
11. Sypialnia12.0 m2
Rzuty
1. Pokój dzienny36.7 m2
2. Aneks kuchenny10.9 m2
3. Hall16.4 m2
4. Spiżarka1.8 m2
5. Wiatrołap2.9 m2
6. Kotłownia6.4 m2
7. WC2.6 m2
8. Sypialnia15.8 m2
9. Łazienka7.9 m2
10. Sypialnia16.7 m2
11. Sypialnia12.0 m2
Dbamy o swoich Klientów, jak nikt inny!
Do każdego projektu zakupionego za pośrednictwem serwisu kreoDOM.pl otrzymasz książeczkę z rabatami na zakupy w firmach Komfort, Fachowiec, Domino Łazienki, Komandor, Witek Home i innych. Książeczka na pewno okaże się przydatna podczas urządzania Twojego wymarzonego domu!
Książeczka z rabatami do takich firm jak: Komfort, Domino Łazienki, Fachowiec, Vox, Komandor, Witek Home i innych
Gwarancja
bezpiecznych zakupów
Dodatkowe pakiety projektowe