Dane techniczne
- Powierzchnia użytkowa 104.00 m²
- Powierzchnia zabudowy 128.80 m²
- Kubatura 735.60 m³
- Kąt nachylenia dachu 30.00°
- Wysokość budynku 6.01 m
- Min. wymiary działki 23.00x19.00 m
- Garaż 42.20 m²
- Pracownia MOJ-DOM
Technologia budowy
Fundamenty: żelbetowe, wylewane
Ściany zewnętrzne: szkieletowe, ocieplone wełną mineralną
Strop: belkowy, drewniany, zamknięty
Pokrycie dachu: dachówka cementowa
Opis
Budynek jednorodzinny, parterowy, podpiwniczony, 4 pokoje, kuchnia, garaż
Rzuty
1. Sypialnia11.7 m2
2. Garderoba3.5 m2
3. Sypialnia11.0 m2
4. Pokój dzienny31.1 m2
5. Kuchnia8.8 m2
6. Spiżarka2.7 m2
7. Wiatrołap3.6 m2
8. WC1.4 m2
9. Komunikacja12.6 m2
10. Sypialnia11.0 m2
11. Łazienka6.6 m2
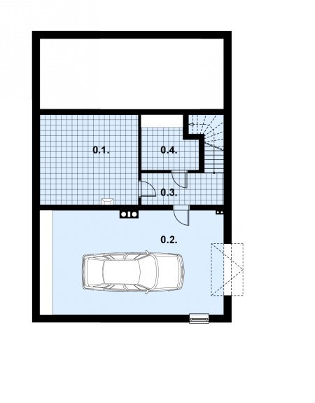
1. Kotłownia19.4 m2
2. Garaż42.2 m2
3. Korytaż5.9 m2
4. Pom. gosp.6.3 m2
Rzuty
1. Sypialnia11.7 m2
2. Garderoba3.5 m2
3. Sypialnia11.0 m2
4. Pokój dzienny31.1 m2
5. Kuchnia8.8 m2
6. Spiżarka2.7 m2
7. Wiatrołap3.6 m2
8. WC1.4 m2
9. Komunikacja12.6 m2
10. Sypialnia11.0 m2
11. Łazienka6.6 m2
1. Kotłownia19.4 m2
2. Garaż42.2 m2
3. Korytaż5.9 m2
4. Pom. gosp.6.3 m2
Dbamy o swoich Klientów, jak nikt inny!
Do każdego projektu zakupionego za pośrednictwem serwisu kreoDOM.pl otrzymasz książeczkę z rabatami na zakupy w firmach Komfort, Fachowiec, Domino Łazienki, Komandor, Witek Home i innych. Książeczka na pewno okaże się przydatna podczas urządzania Twojego wymarzonego domu!
Książeczka z rabatami do takich firm jak: Komfort, Domino Łazienki, Fachowiec, Vox, Komandor, Witek Home i innych
Gwarancja
bezpiecznych zakupów
Dodatkowe pakiety projektowe