Dane techniczne
- Powierzchnia użytkowa 109.50 m²
- Powierzchnia zabudowy 110.80 m²
- Kubatura 615.50 m³
- Kąt nachylenia dachu 45.00°
- Wysokość budynku 7.64 m
- Min. wymiary działki 19.00x19.00 m
- Pracownia MOJ-DOM
Technologia budowy
Fundamenty: żelbetowe, wylewane
Ściany zewnętrzne: z bali drewnianych gr. 12, 16, 20, 24, 30 cm. ocieplone od wewnątrz wełną mineralną, gr. 52 cm bez ocieplenia
Strop: belkowy, drewniany, otwarty
Pokrycie dachu: dachówka cementowa
Opis
Budynek jednorodzinny, parterowy z poddaszem użytkowym, podpiwniczony, 4 pokoje, kuchnia
Rzuty
1. kotłownia17.6 m2
2. pomieszczenie gospodarcze17.7 m2
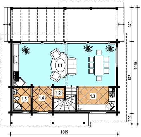
1. pokój dzienny36.7 m2
2. komunikacja2.3 m2
3. kuchnia8.0 m2
4. wiatrołap3.9 m2
5. łazienka3.4 m2
1. sypialnia11.5 m2
2. komunikacja7.7 m2
3. sypialnia22.0 m2
4. sypialnia14.7 m2
5. sauna3.1 m2
6. łazienka7.2 m2
Rzuty
1. kotłownia17.6 m2
2. pomieszczenie gospodarcze17.7 m2
1. pokój dzienny36.7 m2
2. komunikacja2.3 m2
3. kuchnia8.0 m2
4. wiatrołap3.9 m2
5. łazienka3.4 m2
1. sypialnia11.5 m2
2. komunikacja7.7 m2
3. sypialnia22.0 m2
4. sypialnia14.7 m2
5. sauna3.1 m2
6. łazienka7.2 m2
Dbamy o swoich Klientów, jak nikt inny!
Do każdego projektu zakupionego za pośrednictwem serwisu kreoDOM.pl otrzymasz książeczkę z rabatami na zakupy w firmach Komfort, Fachowiec, Domino Łazienki, Komandor, Witek Home i innych. Książeczka na pewno okaże się przydatna podczas urządzania Twojego wymarzonego domu!
Książeczka z rabatami do takich firm jak: Komfort, Domino Łazienki, Fachowiec, Vox, Komandor, Witek Home i innych
Gwarancja
bezpiecznych zakupów
Dodatkowe pakiety projektowe