Dane techniczne
- Powierzchnia użytkowa 89.10 m²
- Powierzchnia zabudowy 65.70 m²
- Kubatura 355.50 m³
- Kąt nachylenia dachu 40.00°
- Wysokość budynku 6.69 m
- Min. wymiary działki 18.50x15.00 m
- Pracownia MOJ-DOM
Technologia budowy
Ściany:
Projekt dostępny również w technologii bala drewnianego.
Fundamenty: żelbetowe, wylewane
Ściany zewnętrzne: szkieletowe ocieplone wełną mineralną
Stropy:
Strop: drewniany, belkowy, otwarty
Wykończenie:
Schody: drewniane
Dach
Pokrycie dachu: dachówka cementowa, nachylenie dachu 40
Opis
Budynek jednorodzinny, parterowy, z poddaszem mieszkalnym, niepodpiwniczony, 4 pokoje, kuchnia z jadalnią
Rzuty
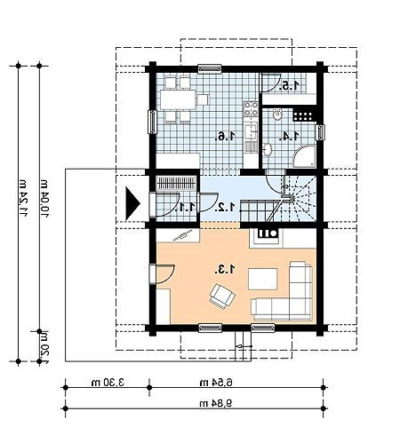
1. wiatrołap2.9 m2
2. hall5.8 m2
3. pokój dzienny22.6 m2
4. łazienka4.8 m2
5. spiżarnia2.6 m2
6. kuchnia z jadalnią14.6 m2
1. hall7.9 m2
2. łazienka6.2 m2
3. sypialnia10.4 m2
4. garderoba4.1 m2
5. sypialnia10.4 m2
6. sypialnia10.3 m2
Rzuty
1. wiatrołap2.9 m2
2. hall5.8 m2
3. pokój dzienny22.6 m2
4. łazienka4.8 m2
5. spiżarnia2.6 m2
6. kuchnia z jadalnią14.6 m2
1. hall7.9 m2
2. łazienka6.2 m2
3. sypialnia10.4 m2
4. garderoba4.1 m2
5. sypialnia10.4 m2
6. sypialnia10.3 m2
Dbamy o swoich Klientów, jak nikt inny!
Do każdego projektu zakupionego za pośrednictwem serwisu kreoDOM.pl otrzymasz książeczkę z rabatami na zakupy w firmach Komfort, Fachowiec, Domino Łazienki, Komandor, Witek Home i innych. Książeczka na pewno okaże się przydatna podczas urządzania Twojego wymarzonego domu!
Książeczka z rabatami do takich firm jak: Komfort, Domino Łazienki, Fachowiec, Vox, Komandor, Witek Home i innych
Gwarancja
bezpiecznych zakupów
Dodatkowe pakiety projektowe