Dane techniczne
- Powierzchnia użytkowa 57.20 m²
- Powierzchnia zabudowy 45.00 m²
- Kubatura 254.20 m³
- Kąt nachylenia dachu 45.00°
- Wysokość budynku 6.11 m
- Min. wymiary działki 17.00x14.00 m
- Pracownia MOJ-DOM
Technologia budowy
Ściany:
Projekt dostępny również w technologii bala drewnianego.
Fundamenty: żelbetowe, wylewane
Ściany zewnętrzne: szkieletowe, ocieplone wełną mineralną
Stropy:
belkowy, drewniany, otwarty
Wykończenie:
Schody: drewniane
Dach
Pokrycie dachu: gont bitumiczny
Opis
Budynek jednorodzinny, parterowy, z poddaszem mieszkalnym, niepodpiwniczony, 3 pokoje, kuchnia
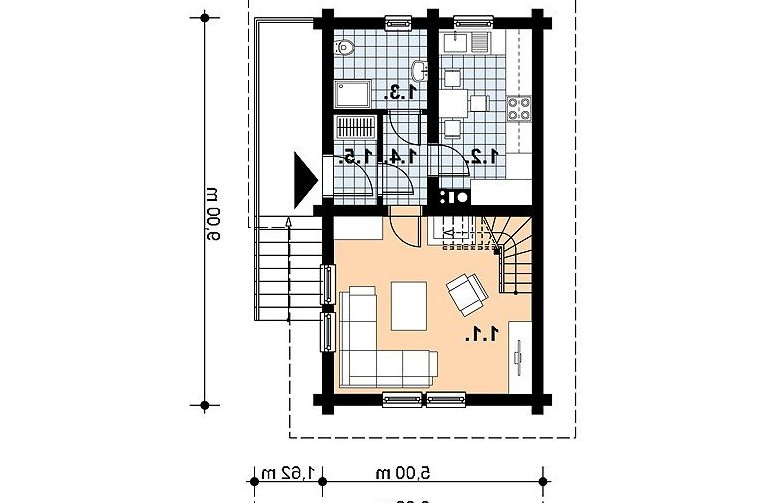
Rzuty
1. pokój dzienny19.9 m2
2. kuchnia9.2 m2
3. łazienka4.5 m2
4. hall2.4 m2
5. wiatrołap2.4 m2
1. sypialnia17.4 m2
2. sypialnia19.6 m2
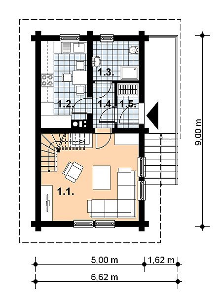
Rzuty
1. pokój dzienny19.9 m2
2. kuchnia9.2 m2
3. łazienka4.5 m2
4. hall2.4 m2
5. wiatrołap2.4 m2
1. sypialnia17.4 m2
2. sypialnia19.6 m2
Dbamy o swoich Klientów, jak nikt inny!
Do każdego projektu zakupionego za pośrednictwem serwisu kreoDOM.pl otrzymasz książeczkę z rabatami na zakupy w firmach Komfort, Fachowiec, Domino Łazienki, Komandor, Witek Home i innych. Książeczka na pewno okaże się przydatna podczas urządzania Twojego wymarzonego domu!
Książeczka z rabatami do takich firm jak: Komfort, Domino Łazienki, Fachowiec, Vox, Komandor, Witek Home i innych
Gwarancja
bezpiecznych zakupów
Dodatkowe pakiety projektowe