Dane techniczne
- Powierzchnia użytkowa 68.40 m²
- Powierzchnia zabudowy 48.70 m²
- Kubatura 327.20 m³
- Kąt nachylenia dachu 40.00°
- Wysokość budynku 6.52 m
- Min. wymiary działki 19.50x16.00 m
- Pracownia MOJ-DOM
Technologia budowy
Ściany:
Projekt dostępny również w technologii bala drewnianego.
Fundamenty: żelbetowe, wylewane
Ściany zewnętrzne: szkieletowe, ocieplone wełną mineralną
Stropy:
Belkowy, drewniany, otwarty
Wykończenie:
Schody: drewniane
Dach
Pokrycie dachu: gont bitumiczny
Opis
Budynek jednorodzinny, parterowy, z poddaszem mieszkalnym, podpiwniczony, 4 pokoje, kuchnia
Rzuty
1. wiatrołap2.3 m2
2. łazienka5.2 m2
3. kuchnia6.7 m2
4. pokój dzienny24.3 m2
5. hall3.7 m2
1. sypialnia6.8 m2
2. hall1.9 m2
3. sypialnia11.9 m2
4. sypialnia19.1 m2
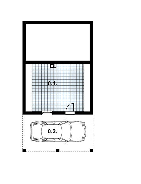
1. wiata18.5 m2
2. pom.gospodarcze22.7 m2
Rzuty
1. wiatrołap2.3 m2
2. łazienka5.2 m2
3. kuchnia6.7 m2
4. pokój dzienny24.3 m2
5. hall3.7 m2
1. sypialnia6.8 m2
2. hall1.9 m2
3. sypialnia11.9 m2
4. sypialnia19.1 m2
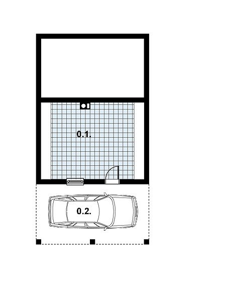
1. wiata18.5 m2
2. pom.gospodarcze22.7 m2
Dbamy o swoich Klientów, jak nikt inny!
Do każdego projektu zakupionego za pośrednictwem serwisu kreoDOM.pl otrzymasz książeczkę z rabatami na zakupy w firmach Komfort, Fachowiec, Domino Łazienki, Komandor, Witek Home i innych. Książeczka na pewno okaże się przydatna podczas urządzania Twojego wymarzonego domu!
Książeczka z rabatami do takich firm jak: Komfort, Domino Łazienki, Fachowiec, Vox, Komandor, Witek Home i innych
Gwarancja
bezpiecznych zakupów
Dodatkowe pakiety projektowe