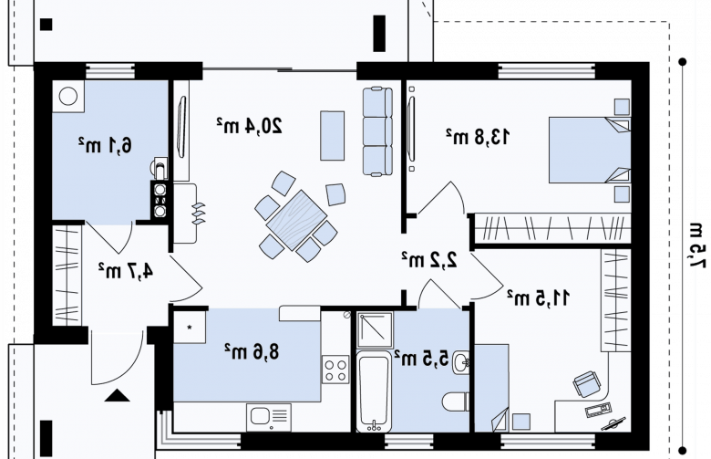
Dane techniczne
- Powierzchnia użytkowa 72.30 m²
- Powierzchnia zabudowy 84.96 m²
- Kubatura 203.29 m³
- Kąt nachylenia dachu 28.00°
- Powierzchnia dachu 141.05 m²
- Wysokość budynku 5.75 m
- Min. wymiary działki 15.50x18.00 m
- Pracownia Studio Z500
Technologia budowy
Ściany szkielet drewniany
Strop drewniany, wiązary
Dach dachówka, blachodachówka
Opis
Projekt Z87 D jest małym domem parterowym. Dużym atutem jest oszczędna, zgrabna bryła z prostym dwuspadowym dachem. Poprzez wkomponowanie w elewację elementów drewnianych budynek nabrał współczesnego wyglądu.
Konstrukcję budynku stanowią ściany wykonane w technologii lekkiego szkieletu drewnianego.
Dbamy o swoich Klientów, jak nikt inny!
Do każdego projektu zakupionego za pośrednictwem serwisu kreoDOM.pl otrzymasz książeczkę z rabatami na zakupy w firmach Komfort, Fachowiec, Domino Łazienki, Komandor, Witek Home i innych. Książeczka na pewno okaże się przydatna podczas urządzania Twojego wymarzonego domu!
Książeczka z rabatami do takich firm jak: Komfort, Domino Łazienki, Fachowiec, Vox, Komandor, Witek Home i innych
Gwarancja
bezpiecznych zakupów
Dodatkowe pakiety projektowe
- Kosztorys inwestorski 249,00zł
- Zestawienie materiałów 57,00 zł
- Wentylacja mechaniczna z rekuperacja 550,00 zł
- Pompa ciepła 250,00 zł
- Kotłownia na paliwo stałe zapytaj o dostępność
- Ogrzewanie podłogowe 350,00 zł
- Kolektory słoneczne 250,00 zł
- Przydomowa oczyszczalnia ścieków 350,00 zł
- Wersja elektroniczna projektu 197,00 zł
- Dodatkowy egzemplarz projektu 249,00 zł