ściany zewnętrzne: tradycyjne murowane dwuwarstwowe - pustak ceramiczny 25cm i styropian
strop: gęstożebrowy
dach o konstrukcji drewnianej z pokryciem z dachówki ceramicznej, cementowej lub blachodachówk
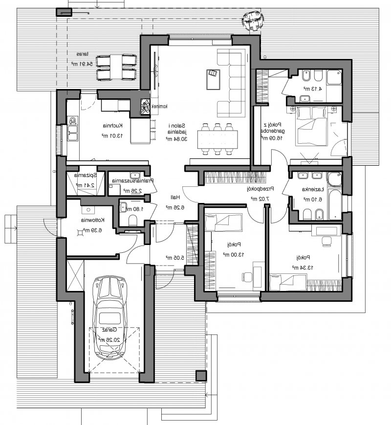
To nowoczesny rozłożysty parterowy, bardzo komfortowy dom.
Do domu prowadzi przestronny doświetlony przedsionek z pojemną szafą.
Bardzo przemyślane rozplanowanie pomieszczeń zapewnia elastyczność w dostosowaniu ich do swoich potrzeb. Wyraźne wydzielenie stref funkcjonalnych domu pozwala na komfortowe i niezależne korzystanie z nich, a także zapewnia możliwość zamknięcia drzwiami części prywatnej. Także salon i kuchnia mogą zostać wydzielone ścianami z osobnymi wejściami do obu pomieszczeń.
Foremny 30-to metrowy ustawny salon wraz z dużą ścianą telewizyjną zapewnia łatwe i funkcjonalne umeblowanie. Duża jadalnia, w której z powodzeniem zmieści się stół na 12 osób na szczególne okazje.
Wysoki salon z pięknym dużym przeszkleniem otwartym na ogród jest niewątpliwą atrakcją tego domu. Może on zostać wzbogacony o antresolę otwartą na salon. Miejsce na schody przewidziano w hallu.
Duża kuchnia z przestronną spiżarnią otwarta jest na zadaszony taras, dostępny także z salonu. To bardzo atrakcyjne rozwiązanie, które pozwala na wygodne wykorzystanie tarasu w roli letniej jadalni. Duże zadaszenie zostało tak przemyślane, by nie zaciemniało salonu.
W części prywatnej znalazły się 3 duże, foremne sypialnie, w tym jedna z garderobą i własną łazienką oraz ogólnodostępna łazienka a także miejsce na pojemną szafę w przedpokoju.
Duża kotłownia pozwala na zastosowanie dowolnego sposobu opału.
Elegancki, wysmakowany, o dobrze dobranych proporcjach bryły i wyważonym detalu. Ciekawe nowoczesne elewacje zapewniają atrakcyjny wygląd.