Ściany zewnętrzne: tradycyjne murowane dwuwarstwowe – pustak ceramiczny 25 cm i styropian.Strop: gęstożebrowy. Schody żelbetowe monolityczne. Dach: o konstrukcji drewnianej z pokryciem z dachówki ceramicznej, cementowej lub blachodachówki. Ogrzewanie: na gaz.
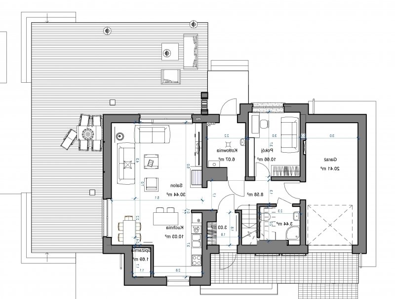
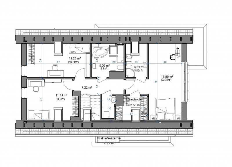
Domidea 57 to komfortowy, dom z poddaszem użytkowym o nie wielkich gabarytach. Bardzo przemyślane rozplanowanie pomieszczeń zapewnia elastyczność w dostosowaniu ich do swoich potrzeb. Wyraźne wydzielenie stref funkcjonalnych domu pozwala na komfortowe i niezależne korzystanie z nich, a także zapewnia możliwość zamknięcia drzwiami części prywatnej. Do dyspozycji mieszkańców jest duży salon połączony z jadalną z widokiem na przestronny taras.
Elegancki, wysmakowany, o dobrze dobranych proporcjach bryły i wyważonym detalu. Ciekawe nowoczesne elewacje zapewniają atrakcyjny wygląd.