Dane techniczne
- Powierzchnia użytkowa 165.20 m²
- Powierzchnia zabudowy 127.73 m²
- Kubatura 522.13 m³
- Kąt nachylenia dachu 45.00°
- Powierzchnia dachu 254.36 m²
- Wysokość budynku 8.59 m
- Min. wymiary działki 19.30x19.40 m
- Pracownia Archipelag
Technologia budowy
Budynek zaprojektowano w technologii murowej ze stropem gęstożebrowym. Schody wewnętrzne drewniane. Dach wielospadowy o konstrukcji drewnianej pokryto dachówką ceramiczną. Elewacje wykonano z tynku strukturalnego. Stolarka okienna drewniana lub PCV. Rolety zewnętrzne naokienne w systemie CleverBox firmy BeClever.
Opis
Dom parterowy z użytkowym poddaszem, niepodpiwniczony, przeznaczony dla 4-5-osobowej rodziny. Bezpośrednio z wiatrołapu mamy dostęp do przejściowego pomieszczenia gospodarczego oraz do przestronnego holu prowadzącego do gabinetu, łazienki i dużego pokoju dziennego z centralnie usytuowanym kominkiem. W tej części zaprojektowana została również jadalnia i otwarta kuchnia wraz ze spiżarką. Poddasze to trzy wygodne pokoje, sypialnia z własną garderobą oraz duża, jasna łazienka.
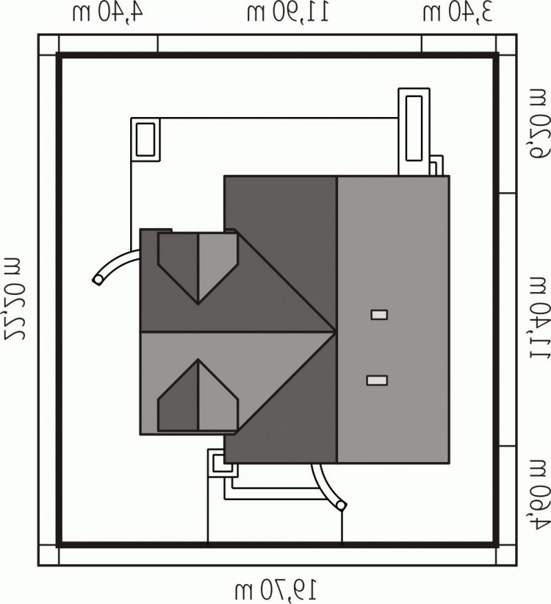
Rzuty
PARTER
- Wiatrołap 6.58 m2
- Hol schody 10.95 m2
- Kuchnia 14.56 m2
- Spiżarnia 1.91 m2
- Pokój dzienny 38.07 m2
- Gabinet 10.82 m2
- Łazienka 2.84 m2
- Kotłownia 11.29 m2
PODDASZE
- Korytarz 4.85 m2
- Sypialnia 15.99 m2
- Garderoba 5.84 m2
- Sypialnia 16.53 m2
- Sypialnia 10.48 m2
- Sypialnia 14.92 m2
- Łazienka 10.86 m2
Rzuty
PARTER
- Wiatrołap 6.58 m2
- Hol schody 10.95 m2
- Kuchnia 14.56 m2
- Spiżarnia 1.91 m2
- Pokój dzienny 38.07 m2
- Gabinet 10.82 m2
- Łazienka 2.84 m2
- Kotłownia 11.29 m2
PODDASZE
- Korytarz 4.85 m2
- Sypialnia 15.99 m2
- Garderoba 5.84 m2
- Sypialnia 16.53 m2
- Sypialnia 10.48 m2
- Sypialnia 14.92 m2
- Łazienka 10.86 m2
Dbamy o swoich Klientów, jak nikt inny!
Do każdego projektu zakupionego za pośrednictwem serwisu kreoDOM.pl otrzymasz książeczkę z rabatami na zakupy w firmach Komfort, Fachowiec, Domino Łazienki, Komandor, Witek Home i innych. Książeczka na pewno okaże się przydatna podczas urządzania Twojego wymarzonego domu!
Książeczka z rabatami do takich firm jak: Komfort, Domino Łazienki, Fachowiec, Vox, Komandor, Witek Home i innych
Gwarancja
bezpiecznych zakupów
Dodatkowe pakiety projektowe
- Kosztorys inwestorski cena ustalana indywidualnie
- Wentylacja mechaniczna z rekuperacją 700,00 zł
- Wentylacja mechaniczna + GPWC 700,00 zł
- Kolektory Słoneczne 400,00 zł
- Panele Fotowoltaiczne 400,00 zł
- Pompa Ciepła 500,00 zł
- Kominek z DGP 400,00 zł
- Biologiczna oczyszczalnia ścieków 150,00 zł
- Centralny Odkurzacz 300,00 zł
- Szambo przydomowe 200,00 zł
- Dodatkowy egzemplarz projektu 150,00 zł