|
ŚCIANY |
dwuwarstwowe - |
|
STROPY |
żelbetowe wylewane |
| SCHODY |
jednobiegowe wylewane |
|
DACH |
dachówka ceramiczna |
| Stan surowy otwarty | 295 790 zł |
| Stan surowy zamknięty | 334 899 zł |
| Stan deweloperski | 615 520 zł |
| Stan deweloperski metodą gospodarczą | 430 864 zł |
HomeKoncept 28 jest rozbudowaną wersją domu HomeKoncept 26, w którym zaadaptowaliśmy poddasze. Podobnie jak w pierwowzorze - uwagę przyciąga niezwykle ciekawy taras, elegancka elewacja domu wykonana z płyt betonowych połączonych z szlachetnym drewnem oraz białe belkowania wokół domu. Od frontu domu nie sposób nie zwrócić uwagi na reprezentacyjne wejście, delikatnie schowane pod drewnianym belkowaniem.
Wewnątrz domu zachpwaliśmy bardzo dużą strefę dzienną o powierzchni 60 m2 z intrygującym podłużnym oknem w jadalni, kuchnię z wydzieloną spiżarnią, dużą garderobę oraz 3 przestronne pokoje dla domowników lub ich gości.
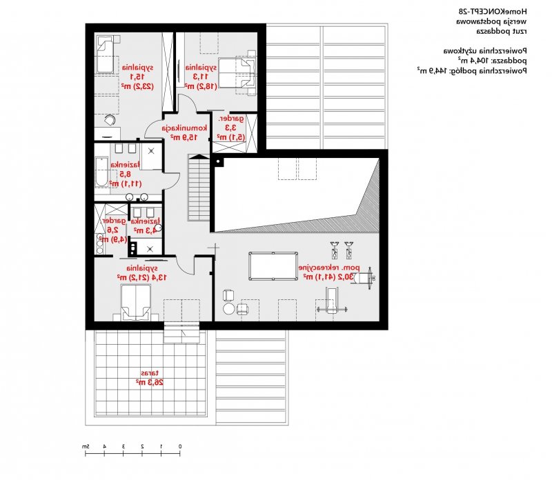
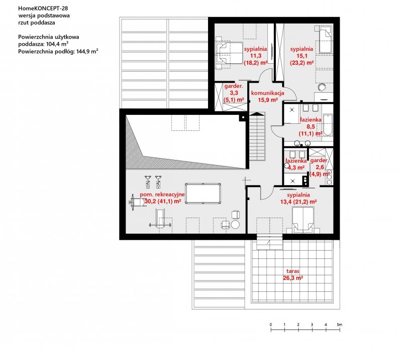
Na poddaszu zmieściły się 3 kolejne pokoje z łazienkami i garderobami oraz przestronne pomieszczenie rekreacyjne, które może być wykorzystane na wiele ciekawych sposobów. Dodatkowym atutem wnętrza jest antresola nad częścią salonu, która optycznie powiększa przestrzeń i czyni cały dom bardziej dostojnym i eleganckim.
Dom jest zaprojektowany w standardzie energooszczędnym, z odpowiednio grubą izolacją ścian, dachu oraz podłogi oraz ma zaprojektowaną wentylację mechaniczną z odzyskiem ciepła.