Technologia wykonania - Ściany dwuwarstwowe - pustak ceramiczny 25 cm + styropian/wełna mineralna
Stropy Żelbetowe wylewane
Dach - dachówka ceramiczna
| Stan surowy otwarty | 256 341 zł |
| Stan surowy zamknięty | 290 984 zł |
| Stan deweloperski | 513 581 zł |
| Stan deweloperski metodą gospodarczą | 359 506 zł |
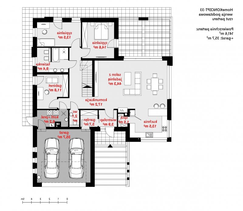
HomeKoncept-33 to wariant domu HomeKoncept-31 w którym zaadoptowane zostało poddasze, zachowując wszystko to, co czyni ten dom tak wyjątkowym. Od strony elewacji ogrodowej zachwyca taras skryty pod charakterystycznym belkowaniem, a od frontu – subtelnie wydzielone wejście osłonięte pergolą. Zestawienie betonowych płyt elewacyjnych z drewnem tworzy piękną oprawę domu. Duże przeszklenia w salonie oraz podłużne okno w jadalni gwarantują odpowiednie doświetlenie całej części dziennej. Kuchnia, jadalnia i salon tworzą jedno, przestronne pomieszczenie. Przy kuchni zaprojektowana została praktyczna spiżarnia. Ponadto, parter ma do zaoferowania domownikom dwie sypialnie, dużą łazienkę oraz gabinet.
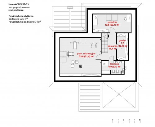
Poddasze doskonale sprawdzi się jako intymna strefa rodziców lub miejsce dla gości. Znajdziemy tu przestronną sypialnię, dużą garderobę i łazienkę. Zaletą tego projektu jest duże pomieszczenie rekreacyjne, które można dowolnie zaaranżować.
Dom jest zaprojektowany w standardzie energooszczędnym, z odpowiednio grubą izolacją ścian, dachu i podłogi. Zastosowana tu energooszczędna stolarka oraz wentylacja mechaniczna z odzyskiem ciepła z pewnością przyczynią się do obniżenia kosztów utrzymania domu w przyszłości.