Dane techniczne
- Powierzchnia użytkowa 162.49 m²
- Powierzchnia zabudowy 155.77 m²
- Kubatura 957.00 m³
- Kąt nachylenia dachu 40.00°
- Wysokość budynku 8.85 m
- Min. wymiary działki 23.45x22.65 m
- Garaż 32.60 m²
- Pracownia Archetyp
Technologia budowy
Dach: blacha na rąbek
Elewacje: tynk, płytki elewacyjne, szalówka
Strop: żelbetowy
Ściany wewnętrzne: murowane
Ściany zewnętrzne: dwuwarstwowe, pustak ceramiczny, docieplony styropianem
Opis
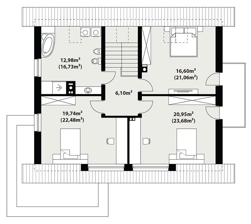
Limbo to nowoczesny dom parterowy z poddaszem użytkowym i dwustanowiskowym garażem. Mimo tradycyjnej bryły przykrytej dwuspadowym dachem, dom prezentuje się oryginalnie i nowocześnie. Wnętrze jest przestronne i funkcjonalne. Pozwala na wiele możliwości aranżacji. Ciekawym rozwiązaniem jest wykusz w jadalni z dużymi przeszkleniami. Salon posiada przeszklone wyjście na zadaszony taras. Przez zastosowanie lukarny na poddaszu, pokoje pod nią mają niewiele skosów i pozwalają na ciekawe aranżacje wnętrza.
Dbamy o swoich Klientów, jak nikt inny!
Do każdego projektu zakupionego za pośrednictwem serwisu kreoDOM.pl otrzymasz książeczkę z rabatami na zakupy w firmach Komfort, Fachowiec, Domino Łazienki, Komandor, Witek Home i innych. Książeczka na pewno okaże się przydatna podczas urządzania Twojego wymarzonego domu!
Książeczka z rabatami do takich firm jak: Komfort, Domino Łazienki, Fachowiec, Vox, Komandor, Witek Home i innych
Gwarancja
bezpiecznych zakupów
Dodatkowe pakiety projektowe
- Kosztorys inwestorski 250,00 zł