Dane techniczne
- Powierzchnia użytkowa 467.48 m²
- Powierzchnia zabudowy 513.30 m²
- Kubatura 2660.78 m³
- Kąt nachylenia dachu 30.00°
- Powierzchnia dachu 146.00 m²
- Wysokość budynku 9.29 m
- Min. wymiary działki 25.50x59.05 m
- Garaż 40.62 m²
- Pracownia LK & Projekt
Technologia budowy
- Elewacje: wykończone tynkiem silikonowym, na fragmentach kamień naturalny cięty-trawertyn
- Ławy fundamentowe: żelbetowe
- Ściany fundamentowe: z betonowych pustaków szalunkowych o gr.30 i 25 cm, ocieplone styropianem 'Gold fundament' firmy Termo Organika o gr.20 cm
- Ściany zewnętrzne: z pustaków ceramicznych 'Porotherm 30 Profi' o gr.30 cm firmy Wienerberger,ocieplone styropianem 'Gold fasada' o gr.20 cm firmy Termo Organika
- Ściany wewnętrzne: z pustaków ceramicznych 'Porotherm Profi' o gr.25 i 11,5 cm firmy Wienerberger
- Sposób ogrzewania: pompa ciepła, ogrzewanie podłogowe, wspomaganie CWU kolektorami słonecznymi
- Okna i drzwi balkonowe: aluminiowe firmy Schücko
- Pokrycie dachu: blachą tytan-cynk; stropodach pokryty warstwą żwiru płukanego
- Konstrukcja dachu: drewniana, ocieplona wełną mineralną o gr.30 cm firmy Rockwool; konstrukcja stropodachu żelbetowa wg systemu Bauder
- Strop: żelbetowy oraz lekki strop panelowy SMART firmy Konbet
- Wentylacja: mechaniczna z rekuperacją + GWC
- Koszt orientacyjny (bez Vat): 2 800 000.00 zł.
Opis
Projekt nowoczesnego domu przeznaczonego dla rodziny 4-6 osobowej. Posiada aż 4 sypialnie, 3 garderoby, dwa garaże.
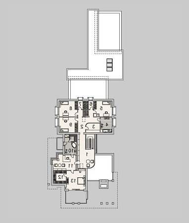
Rzuty
PIWNICA
- Powierzchnia użytkowa 129,14 m2
- Hall 12,13 m2
- Łazienka 3,26 m2
- Pokój rekreacyjny 97,50 m2
- Pomieszczenie gospodarcze 16,25 m2
PARTER
- Powierzchnia użytkowa 251,58 m2
- Sień 16,53 m2
- Garderoba 6,80 m2
- Hall 20,80 m2
- Spiżarka 10,38 m2
- Kuchnia 33,30 m2
- Jadalnia 27,25 m2
- Pokój dzienny 58,50 m2
- Pokój gościnny 20,10 m2
- Łazienka 7,45 m2
- Łazienka 2 4,77 m2
- Siłownia 17,65 m2
- Pralnia 14,49 m2
- Korytarz 13,56 m2
- Pomieszczenie techniczne 17,19 m2
- Garaż 40,62 m2
- Garaż 2 45,00 m2
- Pomieszczenie gospodarcze 15,00 m2
PIĘTRO
- Powierzchnia użytkowa 215,90 m2
- Hall z antresolą 30,40 m2
- Korytarz 13,99 m2
- Pomieszczenie techniczne 8,82 m2
- Łazienka 12,28 m2
- Sypialnia 18,81 m2
- Garderoba 7,76 m2
- Garderoba 2 7,82 m2
- Sypialnia 2 19,66 m2
- Sypialnia 3 19,66 m2
- Łazienka 2 17,06 m2
- Gabinet 22,75 m2
- Garderoba 3 11,46 m2
- Sypialnia 4 25,43 m2
Rzuty
PIWNICA
- Powierzchnia użytkowa 129,14 m2
- Hall 12,13 m2
- Łazienka 3,26 m2
- Pokój rekreacyjny 97,50 m2
- Pomieszczenie gospodarcze 16,25 m2
PARTER
- Powierzchnia użytkowa 251,58 m2
- Sień 16,53 m2
- Garderoba 6,80 m2
- Hall 20,80 m2
- Spiżarka 10,38 m2
- Kuchnia 33,30 m2
- Jadalnia 27,25 m2
- Pokój dzienny 58,50 m2
- Pokój gościnny 20,10 m2
- Łazienka 7,45 m2
- Łazienka 2 4,77 m2
- Siłownia 17,65 m2
- Pralnia 14,49 m2
- Korytarz 13,56 m2
- Pomieszczenie techniczne 17,19 m2
- Garaż 40,62 m2
- Garaż 2 45,00 m2
- Pomieszczenie gospodarcze 15,00 m2
PIĘTRO
- Powierzchnia użytkowa 215,90 m2
- Hall z antresolą 30,40 m2
- Korytarz 13,99 m2
- Pomieszczenie techniczne 8,82 m2
- Łazienka 12,28 m2
- Sypialnia 18,81 m2
- Garderoba 7,76 m2
- Garderoba 2 7,82 m2
- Sypialnia 2 19,66 m2
- Sypialnia 3 19,66 m2
- Łazienka 2 17,06 m2
- Gabinet 22,75 m2
- Garderoba 3 11,46 m2
- Sypialnia 4 25,43 m2
Dbamy o swoich Klientów, jak nikt inny!
Do każdego projektu zakupionego za pośrednictwem serwisu kreoDOM.pl otrzymasz książeczkę z rabatami na zakupy w firmach Komfort, Fachowiec, Domino Łazienki, Komandor, Witek Home i innych. Książeczka na pewno okaże się przydatna podczas urządzania Twojego wymarzonego domu!
Książeczka z rabatami do takich firm jak: Komfort, Domino Łazienki, Fachowiec, Vox, Komandor, Witek Home i innych
Gwarancja
bezpiecznych zakupów
Dodatkowe pakiety projektowe
- Kosztorys inwestorski cena ustalana indywidualnie
- Kolektory słoneczne cena ustalana indywidualnie
- Kominek z DGP cena ustalana indywidualnie
- Wentylacja mechaniczna z rekuperacją cena ustalana indywidualnie
- Pompa ciepła cena ustalana indywidualnie