Dane techniczne
- Powierzchnia użytkowa 644.05 m²
- Powierzchnia zabudowy 730.00 m²
- Kubatura 2379.00 m³
- Kąt nachylenia dachu 2.00°
- Powierzchnia dachu 470.00 m²
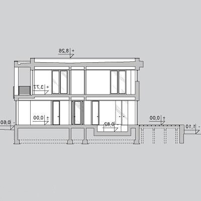
- Wysokość budynku 8.71 m
- Min. wymiary działki 52.00x39.50 m
- Garaż 46.15 m²
- Pracownia LK & Projekt
Technologia budowy
- Wentylacja: mechaniczna z rekuperacją
- Pokrycie dachu: warstwa żwiru płukanego
- Elewacje: wykończone tynkiem silikonowym, na fragmentach kamień naturalny cięty - trawertyn. cegła klinkierowa biała oraz płyty fasadowe HPL
- Okna i drzwi balkonowe: aluminiowe firmy Yawal
- Sposób ogrzewania: pompa ciepła, ogrzewanie podłogowe, wspomaganie CWU kolektorami słonecznymi
- Konstrukcja dachu: stropodach żelbetowy, wg.systemu firmy Bauder
- Strop: żelbetowy
- Ściany zewnętrzne: z pustaków ceramicznych 'Porotherm 30 Profi' o gr.30 cm firmy Wienerberger,ocieplone styropianem 'Gold fasada' o gr.20 cm firmy Termo Organika
- Ściany wewnętrzne: z pustaków ceramicznych 'Porothermi Profi' o gr. 25, 11.5 cm firmy Wienerberger
- Ławy fundamentowe: żelbetowe
- Ściany fundamentowe: z bloczków betonowych o gr.24 cm, ocieplone styropianem 'Gold Fundament' firmy Termo Organika o gr. 20 cm
Opis
Projekt nowoczesnego domu o powierzchni aż 644.05 m². Na parterze znajduje się między innymi pomieszczenie przeznaczone na saunę, dwie garderoby czy pomieszczenie higieniczno-sanitarne.
Rzuty
PARTER
- Garderoba 25,55 m2
- Garderoba 35,37 m2
- WC 23,03 m2
- Hall 216,57 m2
- Pomieszczenie gospodarcze 249,73 m2
PIĘTRO
- Sypialnia 228,63 m2
- Garderoba 24,16 m2
- Łazienka 25,07 m2
- Łazienka 35,07 m2
- Sypialnia 330,83 m2
- Garderoba 35,28 m2
- Hall 211,34 m2
- Sypialnia 429,45 m2
- Łazienka 47,25 m2
- Garderoba 45,75 m2
- Garderoba 54,52 m2
Rzuty
PARTER
- Garderoba 25,55 m2
- Garderoba 35,37 m2
- WC 23,03 m2
- Hall 216,57 m2
- Pomieszczenie gospodarcze 249,73 m2
PIĘTRO
- Sypialnia 228,63 m2
- Garderoba 24,16 m2
- Łazienka 25,07 m2
- Łazienka 35,07 m2
- Sypialnia 330,83 m2
- Garderoba 35,28 m2
- Hall 211,34 m2
- Sypialnia 429,45 m2
- Łazienka 47,25 m2
- Garderoba 45,75 m2
- Garderoba 54,52 m2
Dbamy o swoich Klientów, jak nikt inny!
Do każdego projektu zakupionego za pośrednictwem serwisu kreoDOM.pl otrzymasz książeczkę z rabatami na zakupy w firmach Komfort, Fachowiec, Domino Łazienki, Komandor, Witek Home i innych. Książeczka na pewno okaże się przydatna podczas urządzania Twojego wymarzonego domu!
Książeczka z rabatami do takich firm jak: Komfort, Domino Łazienki, Fachowiec, Vox, Komandor, Witek Home i innych
Gwarancja
bezpiecznych zakupów
Dodatkowe pakiety projektowe
- Kosztorys inwestorski cena ustalana indywidualnie
- Kolektory słoneczne cena ustalana indywidualnie
- Kominek z DGP cena ustalana indywidualnie
- Wentylacja mechaniczna z rekuperacją cena ustalana indywidualnie
- Pompa ciepła cena ustalana indywidualnie