Dane techniczne
- Powierzchnia użytkowa 296.33 m²
- Powierzchnia zabudowy 467.89 m²
- Kubatura 1926.75 m³
- Kąt nachylenia dachu 40.00°
- Powierzchnia dachu 562.84 m²
- Wysokość budynku 9.70 m
- Min. wymiary działki 64.20x23.90 m
- Garaż 15.21 m²
- Pracownia LK & Projekt
Technologia budowy
- Elewacje: wykończone tynkiem silikonowym, elewacyjne płyty fasadowe Prodema - HPL, klinkier ceramiczny OSLO firmy ROBEN
- Okna i drzwi balkonowe: drewniane
- Strop: żelbetowy
- Konstrukcja dachu: drewniana, krokwiowa, docieplona wełną mineralną firmy Rockwool o łącznej gr.40 cm
- Pokrycie dachu: dachówką ceramiczną firmy Wienerberger, Actua 10
- Ściany wewnętrzne: z pustaków ceramicznych Porotherm Profi gr. 25, 11.5 cm firmy Wienerberger
- Ściany zewnętrzne: z pustaków ceramicznych Porotherm Profi o gr.30 cm firmy Wienerberger ocieplone styropianem Platinum Fasada o gr.20 cm firmy Termo Organika
- Ściany fundamentowe: z pustaków szalunkowych o gr.30 cm, ocieplone styropianem Gold fundament o gr.20 cm firmy Termo Organika
- Ławy fundamentowe: żelbetowe
- Sposób ogrzewania: pompa ciepła
- Wentylacja: mechaniczna z rekuperacją
Opis
Nowoczesny, piętrowy dom jednorodzinny, z dwustanowiskowym garażem oraz piwnicą.
Rzuty
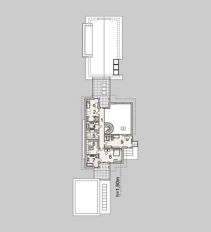
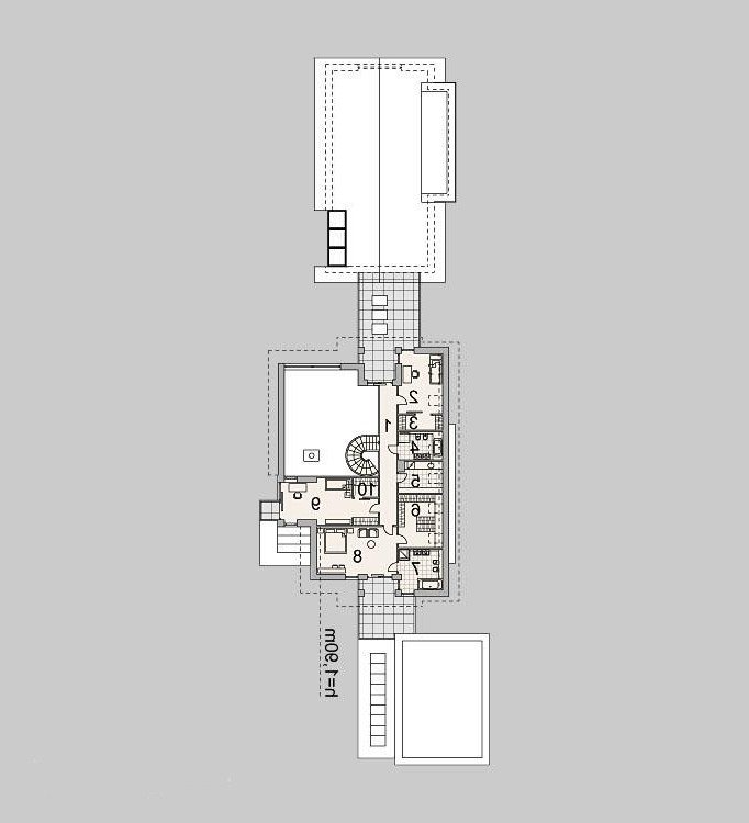
PARTER
- Sień 12,14 m2
- Hall 20,53 m2
- Pokój dzienny 48,26 m2
- Jadalnia 26,77 m2
- Kuchnia 16,45 m2
- Gabinet 10,24 m2
- Garderoba 5,29 m2
- WC 3,72 m2
- Pomieszczenie gospodarcze 4,15 m2
- Kotłownia z rekuperatorem 7,59 m2
- Sauna 3,97 m2
- Łazienka 4,29 m2
- Siłownia 21,71 m2
- Hall 5,20 m2
- Basen 121,89 m2
- Pomieszczenie gospodarcze 15,21 m2
- Garaż 45,76 m2
PODDASZE
- Hall (15,43) 15,43 m2
- Sypialnia (16,56) 13,77 m2
- Garderoba (4,26) 3,58 m2
- Łazienka (7,98) 6,70 m2
- Pralnia (9,05) 7,19 m2
- Garderoba 2 (15,09) 12,67 m2
- Łazienka 2 (11,47) 9,55 m2
- Sypialnia 2 (24,43) 22,27 m2
- Sypialnia 3 (22,97) 22,97 m2
- Garderoba 3 (3,10) 3,10 m
Rzuty
PARTER
- Sień 12,14 m2
- Hall 20,53 m2
- Pokój dzienny 48,26 m2
- Jadalnia 26,77 m2
- Kuchnia 16,45 m2
- Gabinet 10,24 m2
- Garderoba 5,29 m2
- WC 3,72 m2
- Pomieszczenie gospodarcze 4,15 m2
- Kotłownia z rekuperatorem 7,59 m2
- Sauna 3,97 m2
- Łazienka 4,29 m2
- Siłownia 21,71 m2
- Hall 5,20 m2
- Basen 121,89 m2
- Pomieszczenie gospodarcze 15,21 m2
- Garaż 45,76 m2
PODDASZE
- Hall (15,43) 15,43 m2
- Sypialnia (16,56) 13,77 m2
- Garderoba (4,26) 3,58 m2
- Łazienka (7,98) 6,70 m2
- Pralnia (9,05) 7,19 m2
- Garderoba 2 (15,09) 12,67 m2
- Łazienka 2 (11,47) 9,55 m2
- Sypialnia 2 (24,43) 22,27 m2
- Sypialnia 3 (22,97) 22,97 m2
- Garderoba 3 (3,10) 3,10 m
Dbamy o swoich Klientów, jak nikt inny!
Do każdego projektu zakupionego za pośrednictwem serwisu kreoDOM.pl otrzymasz książeczkę z rabatami na zakupy w firmach Komfort, Fachowiec, Domino Łazienki, Komandor, Witek Home i innych. Książeczka na pewno okaże się przydatna podczas urządzania Twojego wymarzonego domu!
Książeczka z rabatami do takich firm jak: Komfort, Domino Łazienki, Fachowiec, Vox, Komandor, Witek Home i innych
Gwarancja
bezpiecznych zakupów
Dodatkowe pakiety projektowe
- Kosztorys inwestorski cena ustalana indywidualnie
- Kolektory słoneczne cena ustalana indywidualnie
- Kominek z DGP cena ustalana indywidualnie
- Wentylacja mechaniczna z rekuperacją cena ustalana indywidualnie
- Pompa ciepła cena ustalana indywidualnie