Dane techniczne
- Powierzchnia użytkowa 223.81 m²
- Powierzchnia zabudowy 211.15 m²
- Kubatura 1194.00 m³
- Kąt nachylenia dachu 3.00°
- Powierzchnia dachu 248.20 m²
- Wysokość budynku 7.70 m
- Min. wymiary działki 22.50x28.38 m
- Garaż 63.00 m²
- Pracownia LK & Projekt
Technologia budowy
- Okna i drzwi balkonowe: aluminiowe (3 szybowe)
- Sposób ogrzewania: pompa ciepła, ogrzewanie podłogowe, kolektory słoneczne
- Wentylacja: mechaniczna z rekuperacją
- Ściany zewnętrzne: z bloczków z betonu komórkowego Ytong Energo o gr.48 cm firmy Xella, cegła klinkierowa
- Ściany wewnętrzne: z bloczków z betonu komórkowego Ytong o gr.24 cm i bloczków Silka o gr.11,5 cm firmy Xella
- Strop: żelbetowy, monolityczny
- Konstrukcja dachu: stropodach żelbetowy, ocieplony płytami z pianki poliuretanowej PIR firmy Bauder
- Pokrycie dachu: blacha tytanowo cynkowa, dwuwarstwowy system hydroizolacji bitumicznej na termoizolacji spadkowej PIR firmy Bauder
- Elewacje: tynk silikonowy kolor: biały; cegła klinkierowa; cokół obłożony kamieniem: trawertyn
- Ławy fundamentowe: żelbetowe
- Ściany fundamentowe: betonowe o gr. 36 cm, styropian Gold Fundament o gr.12 cm firmy Termo Organika
Opis
LK&1181 to projekt nowoczesnego domu podpiwniczonego.
Rzuty
PIWNICA
1.Komunikacja10,91 m2
2.Kotłownia5,41 m2
3.WC4,27 m2
4.Sauna z przebieralnią7,51 m2
5.Pokój rekreacyjny38,17 m2
6.Garaż63 m2
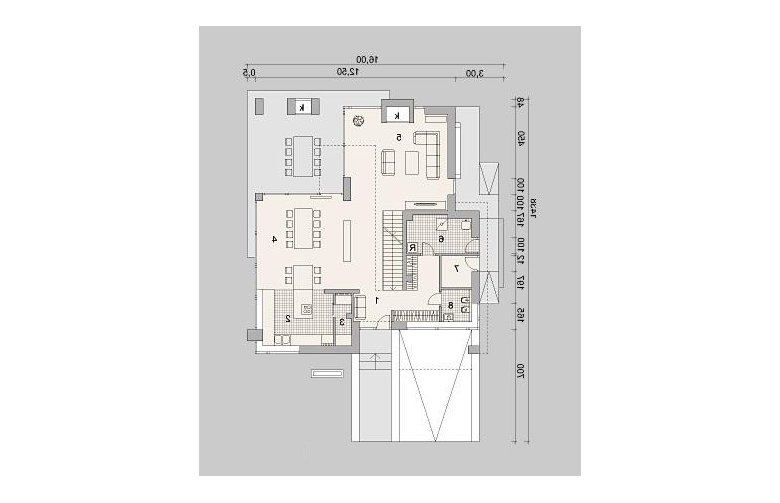
PARTER
1.Hall24,53 m2
2.Kuchnia14,45 m2
3.Spiżarka3,35 m2
4.Jadalnia30,48 m2
5.Pokój dzienny35,31 m2
6.Pralnia9,41 m2
7.Pomieszczenie gospodarcze3,84 m2
8.WC3,88 m2
PIĘTRO
- Garderoba 23,71 m2
- Sypialnia 217,42 m2
- Sypialnia 318,41 m2
- Garderoba 38,03 m2
- Łazienka 211,43 m2
Rzuty
PIWNICA
1.Komunikacja10,91 m2
2.Kotłownia5,41 m2
3.WC4,27 m2
4.Sauna z przebieralnią7,51 m2
5.Pokój rekreacyjny38,17 m2
6.Garaż63 m2
PARTER
1.Hall24,53 m2
2.Kuchnia14,45 m2
3.Spiżarka3,35 m2
4.Jadalnia30,48 m2
5.Pokój dzienny35,31 m2
6.Pralnia9,41 m2
7.Pomieszczenie gospodarcze3,84 m2
8.WC3,88 m2
PIĘTRO
- Garderoba 23,71 m2
- Sypialnia 217,42 m2
- Sypialnia 318,41 m2
- Garderoba 38,03 m2
- Łazienka 211,43 m2
Dbamy o swoich Klientów, jak nikt inny!
Do każdego projektu zakupionego za pośrednictwem serwisu kreoDOM.pl otrzymasz książeczkę z rabatami na zakupy w firmach Komfort, Fachowiec, Domino Łazienki, Komandor, Witek Home i innych. Książeczka na pewno okaże się przydatna podczas urządzania Twojego wymarzonego domu!
Książeczka z rabatami do takich firm jak: Komfort, Domino Łazienki, Fachowiec, Vox, Komandor, Witek Home i innych
Gwarancja
bezpiecznych zakupów
Dodatkowe pakiety projektowe
- Kosztorys inwestorski cena ustalana indywidualnie
- Kolektory słoneczne cena ustalana indywidualnie
- Kominek z DGP cena ustalana indywidualnie
- Wentylacja mechaniczna z rekuperacją cena ustalana indywidualnie
- Pompa ciepła cena ustalana indywidualnie