Dane techniczne
					
						- Powierzchnia użytkowa 264.59 m²
- Powierzchnia zabudowy 223.85 m²
- Kubatura 1097.00 m³
- Kąt nachylenia dachu 45.00°
- Powierzchnia dachu 264.50 m²
- Min. wymiary działki 20.80x31.90 m
- Garaż 66.80 m²
- Pracownia LK & Projekt
 
				
					Technologia budowy
					
- Okna i drzwi balkonowe: Aluminiowe firmy Yawal
- Sposób ogrzewania: kocioł na gaz, ogrzewanie podłogowe
- Ściany zewnętrzne: pustaki ceramiczne Porotherm 44 T Profi o gr.40 cm firmy Wienerberger, styropian Gold fasada firmy Termo Organika o gr. 6 cm
- Konstrukcja dachu: drewniana, ocieplona wełną mineralną o gr. 30 cm firmy Rockwool
- Pokrycie dachu: dachówka ceramiczna Koramic firmy Wienerberger
- Elewacje: tynk silikonowy; beton architektoniczny, płyty HPL kolor: szary i drewnopodobny
- Ściany wewnętrzne: pustaki ceramiczne Porotherm Profi o gr. 25 cm i 11,5 cm firmy Wienerberger
- Strop: żelbetowy, monolityczny
- Ławy fundamentowe: żelbetowe
- Ściany fundamentowe: ŻELBETOWE o gr. 20 i 25 cm, styropian EKSTRUDOWANYM o gr. 20 cm firmy Termo Organika
- Wentylacja: mechaniczna z rekuperacją
 
				
					Opis
					Nowoczesny dom z poddaszem użytkowym i garażem w podpiwniczeniu
				 
								
					Rzuty
															
						
						
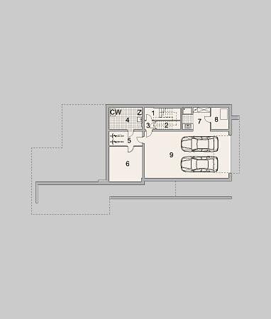
							PIWNICA
																					1.Klatka schodowa4,87 m2
2.Schowek0,68 (3,41) m2
3.Korytarz1,55 m2
4.Kotłownia12,27 m2
5.Schowek8,27 m2
6.Magazyn19,67 m2
7.Natrysk dla psa10,75 m2
8.Pomieszczenie na agregat6,51 m2
9.Garaż66,80 m2
																				 
					 
																				
						
						
							PARTER
																					1.Sień8,95 m2
2.Hall23,26 m2
3.Spiżarka7,92 m2
4.Gabinet19,47 m2
5.Sypialnia17,57 m2
6.Łazienka5,50 m2
7.Kuchnia15,71 m2
8.Jadalnia19,80 m2
9.Salon39,01 m2
																				 
					 
																				
						
						
							PIĘTRO
																					
																										- Łazienka 2(11,73) 6,62 m2
- Sypialnia 2(13,03) 11,15 m2
- Sypialnia 3(13,02) 11,14 m2
- Pralnia(5,87) 2,65 m2
 
					 
														 
												
					Rzuty
															
											
							PIWNICA
																					1.Klatka schodowa4,87 m2
2.Schowek0,68 (3,41) m2
3.Korytarz1,55 m2
4.Kotłownia12,27 m2
5.Schowek8,27 m2
6.Magazyn19,67 m2
7.Natrysk dla psa10,75 m2
8.Pomieszczenie na agregat6,51 m2
9.Garaż66,80 m2
																				 
											
					 
																				
											
							PARTER
																					1.Sień8,95 m2
2.Hall23,26 m2
3.Spiżarka7,92 m2
4.Gabinet19,47 m2
5.Sypialnia17,57 m2
6.Łazienka5,50 m2
7.Kuchnia15,71 m2
8.Jadalnia19,80 m2
9.Salon39,01 m2
																				 
											
					 
																				
											
							PIĘTRO
																					
																										- Łazienka 2(11,73) 6,62 m2
- Sypialnia 2(13,03) 11,15 m2
- Sypialnia 3(13,02) 11,14 m2
- Pralnia(5,87) 2,65 m2
 
											
					 
														 
				
			 
			
			
			
				Dbamy o swoich Klientów, jak nikt inny!
Do każdego projektu zakupionego za pośrednictwem serwisu kreoDOM.pl otrzymasz książeczkę z rabatami na zakupy w firmach Komfort, Fachowiec, Domino Łazienki, Komandor, Witek Home i innych. Książeczka na pewno okaże się przydatna podczas urządzania Twojego wymarzonego domu!
Książeczka z rabatami do takich firm jak: Komfort, Domino Łazienki, Fachowiec, Vox, Komandor, Witek Home i innych
 
 
Gwarancja
bezpiecznych zakupów
 
 
 
				
					
					
						Dodatkowe pakiety projektowe
												
															- Kosztorys inwestorski cena ustalana indywidualnie
- Kolektory słoneczne cena ustalana indywidualnie
- Kominek z DGP cena ustalana indywidualnie
- Wentylacja mechaniczna z rekuperacją cena ustalana indywidualnie
- Pompa ciepła cena ustalana indywidualnie