Dane techniczne
- Powierzchnia użytkowa 211.93 m²
- Powierzchnia zabudowy 171.67 m²
- Kubatura 593.40 m³
- Kąt nachylenia dachu 35.00°
- Powierzchnia dachu 174.97 m²
- Wysokość budynku 10.31 m
- Min. wymiary działki 25.20x22.45 m
- Pracownia LK & Projekt
Technologia budowy
- Okna i drzwi balkonowe: aluminiowe firmy Yawal
- Konstrukcja dachu: drewniana
- Pokrycie dachu: blacha tytan.-cynk.
- Elewacje: wykończone tynkiem silikonowym,i elewacje drewniane Moco, cokół tarasów: jasny granit
- Strop: żelbetowy, wylewany
- Ściany wewnętrzne: z pustaków ceramicznych Porotherm gr. 25, 18,8 i 11.5 firmy Wienerberger
- Ściany fundamentowe: betonowe
- Ściany zewnętrzne: z pustaków ceramicznych 'Porotherm 44 Si' firmy Wienerberger
- Ławy fundamentowe: żelbetowe
- Sposób ogrzewania: kocioł na gaz
- Wentylacja: mechaniczna z rekuperacją
- Koszt orientacyjny (bez Vat): 466 246.00 zł.
Opis
Dom jednorodzinny, piętrowy.
Rzuty
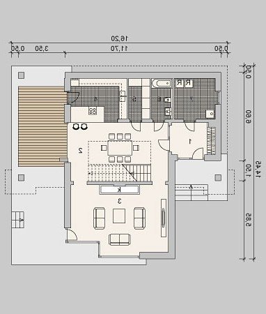
PARTER
Parter
1. Wiatrołap 7.65m
2. Jadalnia 29.21m
3. Pokój dzienny 34.23m
4. Kuchnia 13.83m
5. Spiżarka 4.90m
6. Łazienka 4.90m
7. Kotłownia z rekuperatorem 9.36m
PIĘTRO
Piętro
1. Korytarz
18.19m
2. Sypialnia 18.45m
3. Sypialnia 2 18.74m
4. Łazienka 8.72m
5. Pralnia 7.48m
6. Garderoba 8.46m
7. Łazienka 2 9.36m
8. Sypialnia 3
18.45m
Rzuty
PARTER
Parter
1. Wiatrołap 7.65m
2. Jadalnia 29.21m
3. Pokój dzienny 34.23m
4. Kuchnia 13.83m
5. Spiżarka 4.90m
6. Łazienka 4.90m
7. Kotłownia z rekuperatorem 9.36m
PIĘTRO
Piętro
1. Korytarz
18.19m
2. Sypialnia 18.45m
3. Sypialnia 2 18.74m
4. Łazienka 8.72m
5. Pralnia 7.48m
6. Garderoba 8.46m
7. Łazienka 2 9.36m
8. Sypialnia 3
18.45m
Dbamy o swoich Klientów, jak nikt inny!
Do każdego projektu zakupionego za pośrednictwem serwisu kreoDOM.pl otrzymasz książeczkę z rabatami na zakupy w firmach Komfort, Fachowiec, Domino Łazienki, Komandor, Witek Home i innych. Książeczka na pewno okaże się przydatna podczas urządzania Twojego wymarzonego domu!
Książeczka z rabatami do takich firm jak: Komfort, Domino Łazienki, Fachowiec, Vox, Komandor, Witek Home i innych
Gwarancja
bezpiecznych zakupów
Dodatkowe pakiety projektowe
- Kosztorys inwestorski cena ustalana indywidualnie
- Kolektory słoneczne cena ustalana indywidualnie
- Kominek z DGP cena ustalana indywidualnie
- Wentylacja mechaniczna z rekuperacją cena ustalana indywidualnie
- Pompa ciepła cena ustalana indywidualnie