Dane techniczne
- Powierzchnia użytkowa 187.72 m²
- Powierzchnia zabudowy 195.36 m²
- Kubatura 750.00 m³
- Kąt nachylenia dachu 2.00°
- Powierzchnia dachu 214.86 m²
- Wysokość budynku 7.65 m
- Min. wymiary działki 22.20x26.03 m
- Garaż 36.60 m²
- Pracownia LK & Projekt
Technologia budowy
- Sposób ogrzewania: kocioł na gaz, ogrzewanie podłogowe
- Okna i drzwi balkonowe: aluminiowe firmy Yawal, drzwi garażowe firmy Hormann
- Elewacje: wykończone tynkiem silikonowym oraz drewnem Moco
- Wentylacja: mechaniczna z rekuperacją
- Pokrycie dachu: warstwa żwiru i folia dachowa z tworzywa sztucznego
- Strop: żelbetowy, monolityczny
- Ławy fundamentowe: żelbetowe
- Ściany fundamentowe: betonowe, ocieplone styropianem Gold Fundament gr. 12, 15, 20 cm firmy Termo Organika
- Ściany zewnętrzne: z pustaków Porotherm gr. 50 P+W i 30 P+W firmy 'Wienerberger', ocieplone wełną mineralną Superock gr. 15 cm firmy Rockwool
- Konstrukcja dachu: stropodach żelbetowy, ocieplony płytami z pianki poliuretanowej PIR gr. 25 cm firmy Bauder i ocieplony styropianem Gold Dach Podłoga firmy Termo Organika
- Ściany wewnętrzne: z pustaków ceramicznych Porotherm gr. 25, 11.5 firmy 'Wienerberger '
- Koszt orientacyjny (bez Vat): 680 030.00 zł.
Opis
Dom jednorodzinny, piętrowy, z dwustanowiskowym garażem.
Rzuty
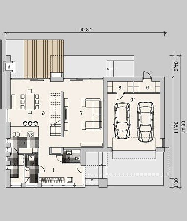
PARTER
Parter
1. Hall 14.09m
2. WC 2.90m
3. Kotłownia z pralnią 4.81m
4. Spiżarka 4.78m
5. Kuchnia 17.45m
6. Jadalnia 24.68m
7. Pokój dzienny 34.35m
8. Pomieszczenie techniczne 3.70m
9. Pomieszczenie gospodarcze 3.77m
10. Garaż 36.60m
PIĘTRO
Piętro
1. Hall 12.72m
2. Sypialnia 19.96m
3. Sypialnia 2 18.55m
4. Sypialnia 3
13.15m
5. Łazienka 4.05m
6. Łazienka 2 12.40m
7. Garderoba 3.83m
Rzuty
PARTER
Parter
1. Hall 14.09m
2. WC 2.90m
3. Kotłownia z pralnią 4.81m
4. Spiżarka 4.78m
5. Kuchnia 17.45m
6. Jadalnia 24.68m
7. Pokój dzienny 34.35m
8. Pomieszczenie techniczne 3.70m
9. Pomieszczenie gospodarcze 3.77m
10. Garaż 36.60m
PIĘTRO
Piętro
1. Hall 12.72m
2. Sypialnia 19.96m
3. Sypialnia 2 18.55m
4. Sypialnia 3
13.15m
5. Łazienka 4.05m
6. Łazienka 2 12.40m
7. Garderoba 3.83m
Dbamy o swoich Klientów, jak nikt inny!
Do każdego projektu zakupionego za pośrednictwem serwisu kreoDOM.pl otrzymasz książeczkę z rabatami na zakupy w firmach Komfort, Fachowiec, Domino Łazienki, Komandor, Witek Home i innych. Książeczka na pewno okaże się przydatna podczas urządzania Twojego wymarzonego domu!
Książeczka z rabatami do takich firm jak: Komfort, Domino Łazienki, Fachowiec, Vox, Komandor, Witek Home i innych
Gwarancja
bezpiecznych zakupów
Dodatkowe pakiety projektowe
- Kosztorys inwestorski cena ustalana indywidualnie
- Kolektory słoneczne cena ustalana indywidualnie
- Kominek z DGP cena ustalana indywidualnie
- Wentylacja mechaniczna z rekuperacją cena ustalana indywidualnie
- Pompa ciepła cena ustalana indywidualnie