Technologia tradycyjna : - ściany zewnętrzne murowane gr. 30 cm - ściany wewnętrzne nośne gr. 25 cm - ściany wewnętrzne działowe gr. 12 cm - wszystkie ściany wykonane z pustaków ceramicznych "POROTHERM"
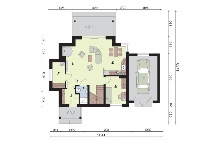
Lubeka - projekt domu jednorodzinnego Lubeka zachwyci cię praktycznym pięknem i nowoczesnymi elementami upiększającymi zewnętrzne ściany budynku. Elewacja tylna z symetrycznie wpisanymi drzwiami tarasowymi, nad którymi znajduje się zadaszenie imponuje symetryczną kompozycją. Garaż umiejscowiony na zachodniej ścianie domu w pełni harmonizuje się z pozostałą częścią domu. Prawa część elewacji zwraca uwagę ciekawym zagospodarowaniem wykuszu, który łączy się drzwiami balkonowymi pierwszego piętra. Wnętrze - przemyślane i odpowiednio zagospodarowane - z pewnością nikogo nie rozczaruje. Wejście znajduje się od południa, za nim jest wiatrołap, dalej po prawej usytuowano kotłownię lub pralnię w zależności od wyboru typu ogrzewania. Po lewej usytuowano łazienkę. Za nią można znaleźć schody wiodące na piętro. Na parterze największe pomieszczenie to kuchnia z jadalnią przechodząca w pokój dzienny, z którego wychodzi się na urokliwy taras. Na piętrze znajdziecie łazienkę oraz cztery pokoje, które można zagospodarować według własnego uznania. 120 m2, które zajmuje Lubeka, imponuje przemyślanym zagospodarowaniem przestrzeni. Dom i garaż stanowią kompleksowe rozwiązanie, które jest odpowiedzią na potrzeby wielu rodzin, poszukujących przemyślanych i pragmatycznych rozwiązań. Projekt składa się z części architektonicznej, konstrukcyjnej, wewnętrznych instalacji wod.-kan, c. o. i elektrycznej. W projekcie załączone są podstawowe zestawienie stali, drewna i stolarki okienno-drzwiowej. Do projektu dołączamy bezpłatną zgodę na wprowadzenie zmian, oświadczenie projektantów o wykonaniu projektu zgodnie z obowiązującymi normami i przepisami oraz kserokopie uprawnień projektantów wraz z aktualnym wpisem do izby. W przypadku zamówienia projektu w technologii lekkiej, drewnianej konstrukcji szkieletowej, powierzchnia użytkowa budynku jest o około 7% większa.