Technologia tradycyjna :
- ściany zewnętrzne murowane gr. 30 cm
- ściany wewnętrzne nośne gr. 25 cm
- ściany wewnętrzne działowe gr. 12 cm
- wszystkie ściany wykonane z pustaków ceramicznych "POROTHERM"
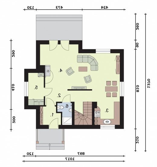
Miluza Dom jednorodzinny z poddaszem noszący nazwę Miluza to propozycja, która już na pierwszy rzut oka sprawia pozytywne, miłe wrażenie. Jest połączeniem tradycji z nowoczesnością, proponowany wygląd elewacji to sugestia warta uwagi, za którą warto podążyć. Gustowne, symetryczne odeskowanie i odpowiadające mu biegunowo wejścia elewacji frontowej (weranda) i tylnej (taras) są nowoczesnymi i zestawionymi ze smakiem elementami architektonicznymi. Dwuspadowy dach jest gwarancją funkcjonalności i bezpieczeństwa. Z nim niestraszne będą wszystkie kaprysy pogody. Wnętrza epatują spokojem i zrównoważeniem, pozytywnie oddziałując na mieszkańców Miluzy. Wiatrołap, komunikacja, sąsiadująca z nimi łazienka (za nią znajdują się schody), przestronny salon łączony z jadalnią i otwartą kuchnią oraz znajdująca się na wschodniej ścianie kotłownia/pralnia to najważniejsze pomieszczenia domu. Z salonu można wyjść na taras, będący miejscem niejednej uroczystej kolacji i wesołej imprezy w gronie rodziny i znajomych. Na piętrze znajdują się 3 pokoje, mogące pełnić funkcje sypialni, duża łazienka usytuowana tuż za schodami zadowoli wszystkich domowników. Miluza to ponad 100 metrów kwadrotowych, które staną się bliskie Twojemu sercu. Projekt składa się z części architektonicznej, konstrukcyjnej, wewnętrznych instalacji wod.-kan, c. o. i elektrycznej. W projekcie załączone są podstawowe zestawienie stali, drewna i stolarki okienno-drzwiowej. Do projektu dołączamy bezpłatną zgodę na wprowadzenie zmian, oświadczenie projektantów o wykonaniu projektu zgodnie z obowiązującymi normami i przepisami oraz kserokopie uprawnień projektantów wraz z aktualnym wpisem do izby. W przypadku zamówienia projektu w technologii lekkiej, drewnianej konstrukcji szkieletowej, powierzchnia użytkowa budynku jest o około 7% większa.