Dane techniczne
- Powierzchnia użytkowa 139.70 m²
- Powierzchnia zabudowy 148.00 m²
- Kąt nachylenia dachu 25.00°
- Wysokość budynku 6.45 m
- Min. wymiary działki 19.50x21.70 m
- Garaż 22.80 m²
- Pracownia Krajobrazy
Technologia budowy
Ściany budynku zaprojektowano z betonu komórkowego z warstwą ocieplenia lub w innej technologii w ramach adaptacji. Strop gęstożebrowy, więźba drewniana, pokrycie dachówką ceramiczną lub cementową. Inne pokrycia w ramach adaptacji. Elewacje tynkowane, elementy fasad okładane płytką klinkierową lub tynkowane.UWAGA! Nowy projekt - przed zamówieniem sprawdź czas realizacji.
Opis
Budynek niepodpiwniczony piętrowy z garażem. Na parterze obok pokoju dziennego i otwartej kuchni ze spiżarnią znajdują się dodatkowe 2 pokoje, łazienka i pomieszczenie gospodarcze. Na poddaszu pod dachem stromym zaprojektowano 2 duże pokoje z garderobami, łazienkę oraz strych lub dodatkowy pokoik. Dokumentacja dostępna również w odbiciu lustrzanym.
Niecodziennie zaprojektowany dom o zwracających uwagę mocno przeszklonych szczytach, doskonale doświetlających pomieszczenia na poddaszu. Klasyczne elementy wystroju fasad oraz formaty okien doskonale współgrają z koncepcją domu o ciekawej bryle domu przykrytej wypłaszczonym dachem.
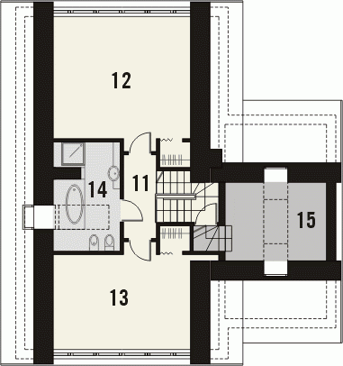
Rzuty
1. wiatrołap 4.5m2
2. garderoba 0.8m2
3. hall 13.6m2
4. pokój dzienny z kuchnią 38.5m2
5. pokój 7.7m2
6. pokój 12.6m2
7. łazienka 5.1m2
8. spiżarnia 1.2m2
9. pom. gospodarcze 6.6m2
10. garaż 22.8m2
11. hall 3.9m2
12. pokój 20.7m2
13. pokój 16.3m2
14. łazienka 8.2m2
15. strych lub pokój 6.4m2
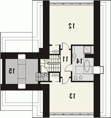
Rzuty
1. wiatrołap 4.5m2
2. garderoba 0.8m2
3. hall 13.6m2
4. pokój dzienny z kuchnią 38.5m2
5. pokój 7.7m2
6. pokój 12.6m2
7. łazienka 5.1m2
8. spiżarnia 1.2m2
9. pom. gospodarcze 6.6m2
10. garaż 22.8m2
11. hall 3.9m2
12. pokój 20.7m2
13. pokój 16.3m2
14. łazienka 8.2m2
15. strych lub pokój 6.4m2
Dbamy o swoich Klientów, jak nikt inny!
Do każdego projektu zakupionego za pośrednictwem serwisu kreoDOM.pl otrzymasz książeczkę z rabatami na zakupy w firmach Komfort, Fachowiec, Domino Łazienki, Komandor, Witek Home i innych. Książeczka na pewno okaże się przydatna podczas urządzania Twojego wymarzonego domu!
Książeczka z rabatami do takich firm jak: Komfort, Domino Łazienki, Fachowiec, Vox, Komandor, Witek Home i innych
Gwarancja
bezpiecznych zakupów
Dodatkowe pakiety projektowe
- Kosztorys inwestorski 950 zł
- Zielony pakiet z pompą ciepła 750 zł
- Aktualizacja do WT2021 850 zł