Technologia tradycyjna, ściany zewnętrzne murowane grubości 30 cm + 10cm styropian, ściany wewnętrzne (nośne) gr. 25 cm i działowe gr. 12 cm. Wszystkie ściany wykonane z pustaków ceramicznych „POROTHERM”. Strop gęstożebrowy „POROTHERM”o gr. 23 cm.. Konstrukcja więźby dachowej drewniana, pokrycie dachówka ceramiczna.
Technologia tradycyjna , ściany zewnętrzne murowane grubości 30 cm, działowe gr. 12 cm. Wszystkie ściany wykonane z pustaków ceramicznych "POROTHERM". Konstrukcja więźby dachowej drewniana, pokrycie dachówka ceramiczna. Istnieje mozliwośc adaptacji obiektu na budynek całoroczny - docieplenie warstwą styropianu gr. 10 cm.
Orientacyjny koszt inwestycji (technologia szkieletowa):
stan surowy zamknięty - 204 000 zł (netto),
stan pod klucz - 248 000 zł (netto).
Wycena nie obejmuje instalacji wewnętrznych.
Stan surowy zamknięty - budynek ocieplony, z pełną stolarką dzwiowo-okienną zewnętrzną, dach kryty dachówką ceramiczną, wszystkie powierzchnie pionowe i poziome przygotowane do położenia ostatniej warstwy wykończeniowej (tynk, płytki, panele).
Realizacja inwestycji tzw. "systemem gospodarczym" pozwala obniżyć jej koszty o około 30%.
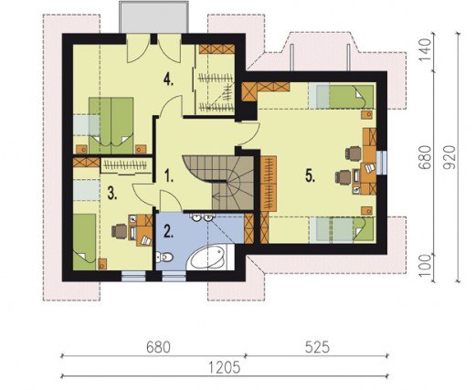
"Palanka" To wytworny dom jednorodzinny z poddaszem, który zachwyca poprzez kontrastujące, a zarazem uzupełniające się elementy drewniane i ceglane. Te drugie zastosowane zostały od frontu jako niewielki murek prowadzący do wejścia, oraz na tyłach budynku przy wykończeniu tarasu. Dużą większą rolę odgrywa tutaj drewno, które subtelnie okala górną połowę elewacji, podkreślając poziomy podział budynku na parter i poddasze. Efekt jest tym ciekawszy, i dodatkowymi elementami drewnianymi, uzupełniającymi całość, są drzwi wejściowe, garażowe oraz składzik na drewno usytuowany na tyłach domu (dostępny również w projekcie Saragossa!). Wnętrze Palanki jest równie efektowne! Przestronny pokój zajmujący większą część parteru pełni funkcję kuchni, jadalni i salonu, a pozostałe pomieszczenia sąsiadujące z nim to toaleta oraz pojemny garaż z kotłownią. Na poddaszu natomiast umieszczone zostały trzy przytulne sypialnie i atrakcyjna łazienka. Projekt składa się z części architektonicznej, konstrukcyjnej, wewnętrznych instalacji wod.-kan, c. o. i elektrycznej. W projekcie załączone są podstawowe zestawienie stali, drewna i stolarki okienno-drzwiowej. Do projektu dołączamy bezpłatną zgodę na wprowadzenie zmian, oświadczenie projektantów o wykonaniu projektu zgodnie z obowiązującymi normami i przepisami oraz kserokopie uprawnień projektantów wraz z aktualnym wpisem do izby. W przypadku zamówienia projektu w technologii lekkiej, drewnianej konstrukcji szkieletowej, powierzchnia użytkowa budynku jest o około 7% większa.