Technologia tradycyjna, ściany zewnętrzne murowane grubości 30 cm + 10 cm styropian, ściany wewnętrzne (nośne) gr. 25 cm i działowe gr. 12 cm. Wszystkie ściany wykonane z pustaków ceramicznych „POROTHERM”. Strop gęstożebrowy „POROTHERM”o gr. 23 cm.. Konstrukcja więźby dachowej drewniana, pokrycie dachówka ceramiczna.
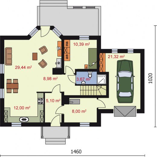
"Siena" Niby dom taki jak inne, zapewniający komfort i bezpieczeństwo, ale czy to wystarczy? Nie, ponieważ od domu, w którym mamy spędzić najpiękniejsze lata swego życia oczekujemy czegoś więcej! Siena może wygląda niepozornie, ale gdy przyjrzymy się jej dokładniej odkryje przed nami mnóstwo korzyści płynących z jej użytkowania. Wbrew regułom zacznijmy opis od jej wnętrza, które zachwyca przepychem i napawa pozytywną energią. Pierwsze pomieszczenie to wiatrołap, z którego możemy kierować sie na wprost do części mieszkalnej, bądź w prawo do garażu; przechodząc przy okazji przez kotłownię, która jest spoiwem łączącym te dwa pomieszczenia. W lewym skrzydle części mieszkalnej znajdują się kuchnia, jadalnia i salon tworzące jedna spójną całość. Jest to bardzo dobre rozwiązanie, gdy wszyscy domownicy chcą być w stałym kontakcie, ponieważ nie występuje tutaj blokada w postaci zamkniętych drzwi. Pokój ulokowany w prawej części budynku może zostać zagospodarowany w różnoraki sposób, wszystko zależy od pomysłowości właściciela. Tuż obok, pod schodami, dyskretnie umieszczono łazienkę, która idealnie pasuje w to miejsce. Pierwszym pomieszczeniem na poddaszu jest pokój określanym mianem komunikacji, który z kolei zaprowadzi nas do sypialni, pokoi gościnnych oraz łazienki. Po omówieniu wnętrza Sieny wypadałoby wspomnieć o jej wyglądzie zewnętrznym, a konkretnie o tarasie zdobiącym tylną elewację. Na szczególną uwagę zasługuje otaczający go solidny, ceglany murek, który nie jest wolno stojącą bryłą, tylko zachwycającą dekoracją uwieńczającą wszelki wysiłek włożony w to, aby dom ten był perfekcyjny. Wystarczy wyobrazić sobie letnie dni oraz rozmaite sposoby spędzania na nim czasu, aby zrozumieć dlaczego jest on niezbędnym elementem całej konstrukcji. Poza tym nad tarasem umiejscowiony został niewielki balkon, na którym będzie można podziwiać przecinającą niebo tęczę, gdy tylko nadarzy się taka okazja.