Dane techniczne
- Powierzchnia użytkowa 122.61 m²
- Powierzchnia zabudowy 87.77 m²
- Kubatura 337.70 m³
- Kąt nachylenia dachu 40.00°
- Powierzchnia dachu 140.18 m²
- Wysokość budynku 7.69 m
- Min. wymiary działki 15.74x19.34 m
- Pracownia Studio Z500
Technologia budowy
Ściany: gazobeton, ceramika, silikaty
Strop: betonowy, gęstożebrowy
Dach: dachówka, blachodachówka
Opis
Z12 P h+ to dom parterowy z Poddaszem użytkowym. Prosta bryła oraz możliwością etapowania inwestycji czynią go tanią i ekonomiczną inwestycją.
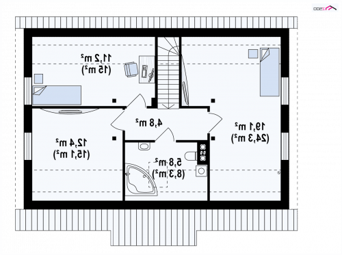
Układ funkcjonalny zaplanowano na rzucie prostokąta. W sieni przewidziano miejsce na dużą szafę. Zlokalizowany niemal w środku hol wydziela strefy - dzienną w prawej części domu oraz mniejszą, nocną z dwiema sypialniami i łazienką.Przy wiatrołapie zaprojektowano spore pomieszczenie gospodarcze, które może być dostępne także z kuchni. Pozwoli to optymalnie zorganizować przestrzeń. Jeden centralnie umieszczony komin wpłynie na obniżenie kosztów i pozwali uprościć wykonanie nowoczesnych instalacji systemu ogrzewania kominkiem lub wykonanie płaszcza wodnego.
Dbamy o swoich Klientów, jak nikt inny!
Do każdego projektu zakupionego za pośrednictwem serwisu kreoDOM.pl otrzymasz książeczkę z rabatami na zakupy w firmach Komfort, Fachowiec, Domino Łazienki, Komandor, Witek Home i innych. Książeczka na pewno okaże się przydatna podczas urządzania Twojego wymarzonego domu!
Książeczka z rabatami do takich firm jak: Komfort, Domino Łazienki, Fachowiec, Vox, Komandor, Witek Home i innych
Gwarancja
bezpiecznych zakupów
Dodatkowe pakiety projektowe
- Kosztorys inwestorski 249,00zł
- Zestawienie materiałów 57,00 zł
- Wentylacja mechaniczna z rekuperacja 550,00 zł
- Pompa ciepła 250,00 zł
- Kotłownia na paliwo stałe zapytaj o dostępność
- Ogrzewanie podłogowe 350,00 zł
- Kolektory słoneczne 250,00 zł
- Przydomowa oczyszczalnia ścieków 350,00 zł
- Wersja elektroniczna projektu 197,00 zł
- Dodatkowy egzemplarz projektu 249,00 zł