Dane techniczne
- Powierzchnia użytkowa 125.24 m²
- Powierzchnia zabudowy 117.95 m²
- Kubatura 407.76 m³
- Kąt nachylenia dachu 40.00°
- Powierzchnia dachu 196.55 m²
- Wysokość budynku 7.07 m
- Min. wymiary działki 18.38x20.38 m
- Garaż 21.91 m²
- Pracownia Studio Z500
Technologia budowy
Ściany; beton komórkowy plus ocieplenie
Strop: gęstożebrowy Teriva
Dach; pokrycie dachówką ceramiczną, cementową lub blachodachówką
Opis
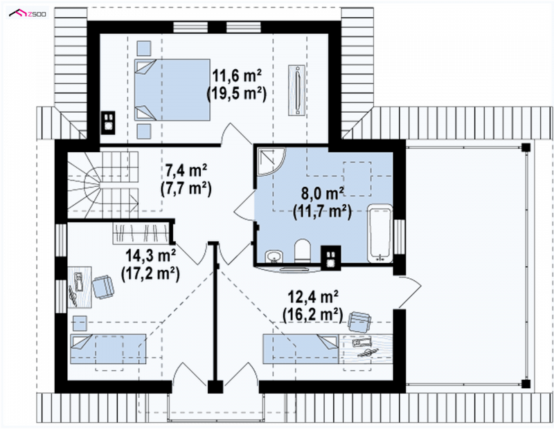
Wersja podstawowa domku Z13 z garażem po prawej stronie. Nad garażem przewidziano miejsce na zadaszony taras, można wykorzystać tą przestrzeń również jako dodatkowe pomieszczenie, powiększając powierzchnię poddasza.
Dbamy o swoich Klientów, jak nikt inny!
Do każdego projektu zakupionego za pośrednictwem serwisu kreoDOM.pl otrzymasz książeczkę z rabatami na zakupy w firmach Komfort, Fachowiec, Domino Łazienki, Komandor, Witek Home i innych. Książeczka na pewno okaże się przydatna podczas urządzania Twojego wymarzonego domu!
Książeczka z rabatami do takich firm jak: Komfort, Domino Łazienki, Fachowiec, Vox, Komandor, Witek Home i innych
Gwarancja
bezpiecznych zakupów
Dodatkowe pakiety projektowe
- Kosztorys inwestorski 249,00zł
- Zestawienie materiałów 57,00 zł
- Wentylacja mechaniczna z rekuperacja 550,00 zł
- Pompa ciepła 250,00 zł
- Kotłownia na paliwo stałe zapytaj o dostępność
- Ogrzewanie podłogowe 350,00 zł
- Kolektory słoneczne 250,00 zł
- Przydomowa oczyszczalnia ścieków 350,00 zł
- Wersja elektroniczna projektu 197,00 zł
- Dodatkowy egzemplarz projektu 249,00 zł
ustalana telefonicznie
114.14 m²
ustalana telefonicznie
125.86 m²