Ściany: gazobeton, ceramika, silikaty
Dach: dachówka, blachodachówka
Strop: betonowy gęstożebrowy Teriva
Z135 to zgrabny współczesny projekt domu jednorodzinnego. Klasyczna bryła ubrana jest w gustowne, niespotykane dodatki. Jasna paleta barw i naturalne elementy elewacji świetnie kontrastują z ciemną dachówką. Gładkie lukarny na piętrze dopełniają nowatorski charakter domu.
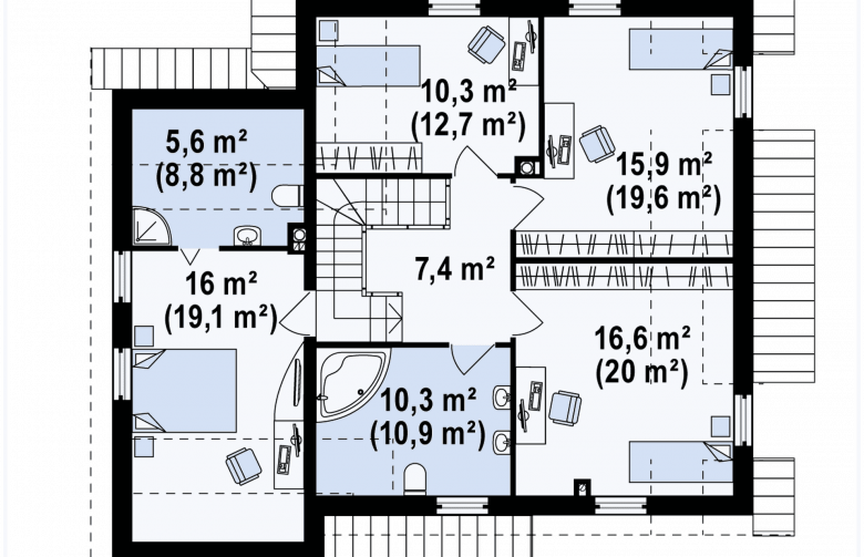
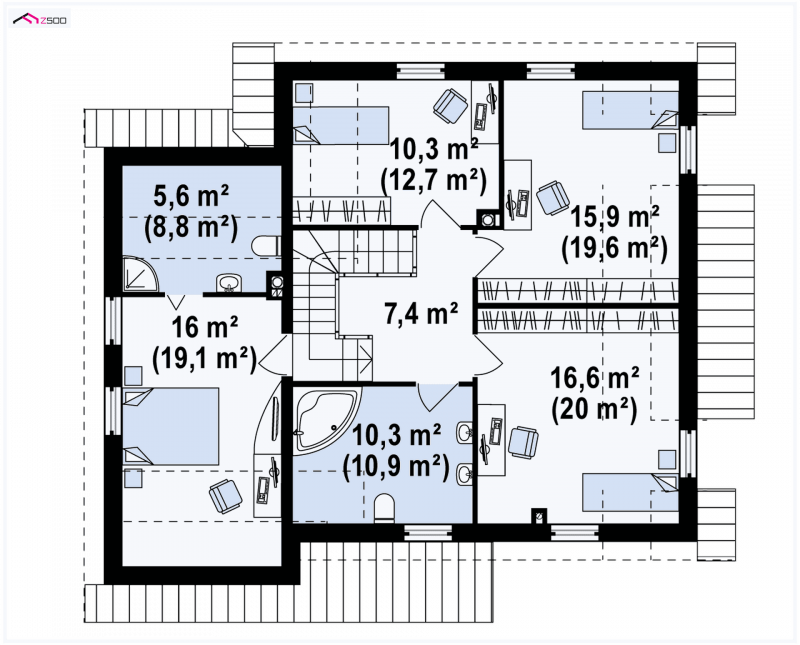
Najważniejszym pomieszczeniem parteru jest salon. Jest on niezwykle przestronny i wygodny. Duże przeszklenia pozwalaja na swobodne wpadanie promieni słonecznych. Wyjątkowego klimatu dodaje niewielki, domowy kominek. Jego ciepło nie tylko perfekcyjnie ogrzeje cały dom, ale równie umili wszystkie zimowe wieczory. Stylowy wykusz jest doskonałym dopełnieniem otwartej kuchni. Na parterze znajduje się również wygodny pokój gościnny oraz komfortowa łazienka. Projekt zawiera garaż jednostanowiskowy z pomieszczeniem dla kotłowni. Na piętrze znajdują się cztery przestronne sypialnie. Jedna z nich posiada własną, odrębną łazienkę.
Projekt Z135 z pewnością przypadnie do gustu ludziom ceniącym klasykę w oryginalnym stylu. Wyjątkowe dodatki, staranna konstrukcja, niepowtarzalna forma, to tylko niektóre z zalet tego projektu.
Charakterystycznymi cechami projektu są: wejście od szczytu, lukarny, brak okien dachowych, pokój na półpiętrze nad wysuniętym do przodu garażem oraz asymetria dachu. Dom idealny dla dużej rodziny (5 sypialni).