Dane techniczne
- Powierzchnia użytkowa 151.15 m²
- Powierzchnia zabudowy 129.90 m²
- Kubatura 536.39 m³
- Kąt nachylenia dachu 40.00°
- Powierzchnia dachu 213.00 m²
- Wysokość budynku 8.34 m
- Min. wymiary działki 16.84x23.34 m
- Garaż 24.80 m²
- Pracownia Studio Z500
Technologia budowy
Ściany: bloczek dwukomórkowy plus ocieplenie
Dach: dachówka lub blachodachówka
Strop: betonowy, gęstożebrowy
Opis
Z178 + 150 to zgrabny i funkcjonalny piętrowy dom z bocznym jednostanowiskowym garażem. Zwarta, prosta bryła oraz dwuspadowy dach czynią go rozsądną, tanią w realizacji inwestycją. Eleganckie wykończenie elewacji, klasyczne dodatki oraz stolarka okienna z naturalnego drewna nadają mu wyjątkowego stylu.
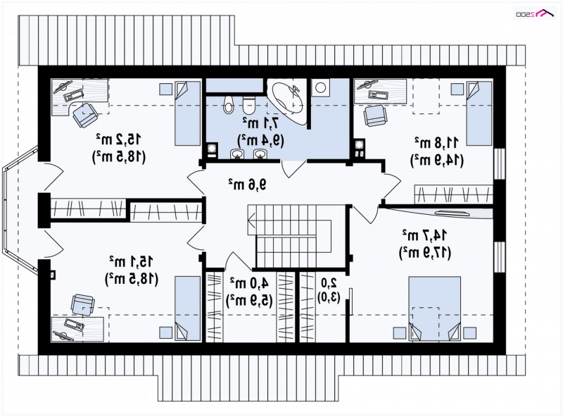
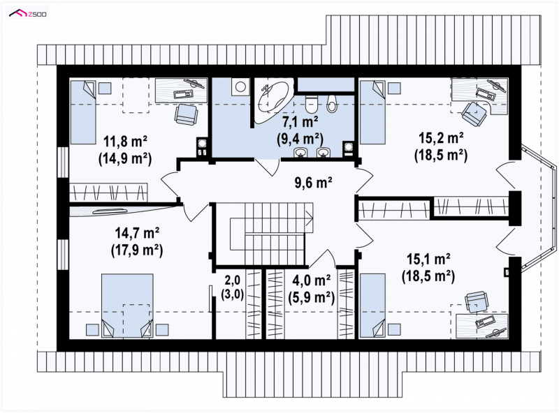
W prawej części domu zlokalizowano strefę reprezentacyjną. Tworzy ją przestronny salon połączony z jadalnią w wykuszu oraz otwartą kuchnią. W salonie znajduje się kominek oraz duże przesuwne drzwi balkonowe, które prowadzą na zadaszony taras. Na parterze zaprojektowano także podręczną spiżarnię, pomieszczenie gospodarcze, wc oraz pokój gościnny. Do garażu można dostać się zarówno przez garderobę jak i pom. gospodarcze. Na piętrze znajdują się strefa nocna. Są tu 4 duże sypialnie, duża łazienka z wanną oraz wydzielonym pomieszczeniem na pralnie . Dwa bliźniacze pokoje posiadają wyjście na balkon, a sypialnia gospodarzy została wyposażona w garderobę.
Dbamy o swoich Klientów, jak nikt inny!
Do każdego projektu zakupionego za pośrednictwem serwisu kreoDOM.pl otrzymasz książeczkę z rabatami na zakupy w firmach Komfort, Fachowiec, Domino Łazienki, Komandor, Witek Home i innych. Książeczka na pewno okaże się przydatna podczas urządzania Twojego wymarzonego domu!
Książeczka z rabatami do takich firm jak: Komfort, Domino Łazienki, Fachowiec, Vox, Komandor, Witek Home i innych
Gwarancja
bezpiecznych zakupów
Dodatkowe pakiety projektowe
- Kosztorys inwestorski 249,00zł
- Zestawienie materiałów 57,00 zł
- Wentylacja mechaniczna z rekuperacja 550,00 zł
- Pompa ciepła 250,00 zł
- Kotłownia na paliwo stałe zapytaj o dostępność
- Ogrzewanie podłogowe 350,00 zł
- Kolektory słoneczne 250,00 zł
- Przydomowa oczyszczalnia ścieków 350,00 zł
- Wersja elektroniczna projektu 197,00 zł
- Dodatkowy egzemplarz projektu 249,00 zł
ustalana telefonicznie
133.17 m²