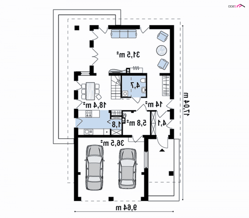
Dane techniczne
- Powierzchnia użytkowa 161.51 m²
- Powierzchnia zabudowy 142.52 m²
- Kubatura 557.89 m³
- Kąt nachylenia dachu 35.00°
- Powierzchnia dachu 205.25 m²
- Wysokość budynku 7.77 m
- Min. wymiary działki 25.04x17.64 m
- Garaż 36.52 m²
- Pracownia Studio Z500
Technologia budowy
Ściany: gazobeton, ceramika, silikaty
Dach: dachówka, blachodachówka
Strop: betonowy gęstożebrowy Teriva
Opis
Z198 to piętrowy dom z dwustanowiskowym garażem i dachem dwuspadowym. Prostą formę urozmaica podcień w salonie oraz wysunięta bryła garażu. Subtelne wykończenia elewacji elementami z drewna nadają wysmakowanej elegancji.
Z198 to niezwykle wygodny i funkcjonalny projekt. Na parterze zaplanowano jasną i przestronna strefę dzienną z dużą kuchnią, podręczną spiżarką oraz jadalnią. W niemal każdym pomieszczeniu znajdują się drzwi balkonowe, które zapewniają doskonały kontakt z otaczającym ogrodem oraz umożliwiają wyjście na taras. Przewidziano tu również liczne miejsca na szafy oraz schowki, dużą łazienkę z miejscem na pralnię. Na poddaszu znajdują się trzy obszerne sypialnie, ogólnodostępna łazienka oraz pojemna garderoba. Strefa gospodarzy to wydzielony azyl z komfortową sypialnią, własna łazienką i garderobą oraz dodatkowym pokojem do pracy. Dwa bliźniacze pokoje posiadają dodatkowo wyjście na wygodny taras nad garażem.
Ciekawie rozplanowane pomieszczenia zapewnią wygodę i radość domownikom każdego dnia.
Dbamy o swoich Klientów, jak nikt inny!
Do każdego projektu zakupionego za pośrednictwem serwisu kreoDOM.pl otrzymasz książeczkę z rabatami na zakupy w firmach Komfort, Fachowiec, Domino Łazienki, Komandor, Witek Home i innych. Książeczka na pewno okaże się przydatna podczas urządzania Twojego wymarzonego domu!
Książeczka z rabatami do takich firm jak: Komfort, Domino Łazienki, Fachowiec, Vox, Komandor, Witek Home i innych
Gwarancja
bezpiecznych zakupów
Dodatkowe pakiety projektowe
- Kosztorys inwestorski 249,00zł
- Zestawienie materiałów 57,00 zł
- Wentylacja mechaniczna z rekuperacja 550,00 zł
- Pompa ciepła 250,00 zł
- Kotłownia na paliwo stałe zapytaj o dostępność
- Ogrzewanie podłogowe 350,00 zł
- Kolektory słoneczne 250,00 zł
- Przydomowa oczyszczalnia ścieków 350,00 zł
- Wersja elektroniczna projektu 197,00 zł
- Dodatkowy egzemplarz projektu 249,00 zł