Dane techniczne
- Powierzchnia użytkowa 107.70 m²
- Powierzchnia zabudowy 79.91 m²
- Kubatura 297.10 m³
- Kąt nachylenia dachu 40.00°
- Powierzchnia dachu 135.95 m²
- Wysokość budynku 7.75 m
- Min. wymiary działki 15.44x18.74 m
- Pracownia Studio Z500
Technologia budowy
Ściany: gazobeton, ceramika, silikaty
Dach: dachówka, blachodachówka
Strop: betonowy gęstożebrowy Teriva
Opis
Z225 to kompaktowy dom z poddaszem użytkowym. Prosta bryła przekryta dwuspadowym dachem skrywa funkcjonalną przestrzeń użytkową dla 4-5 osobowej rodziny.
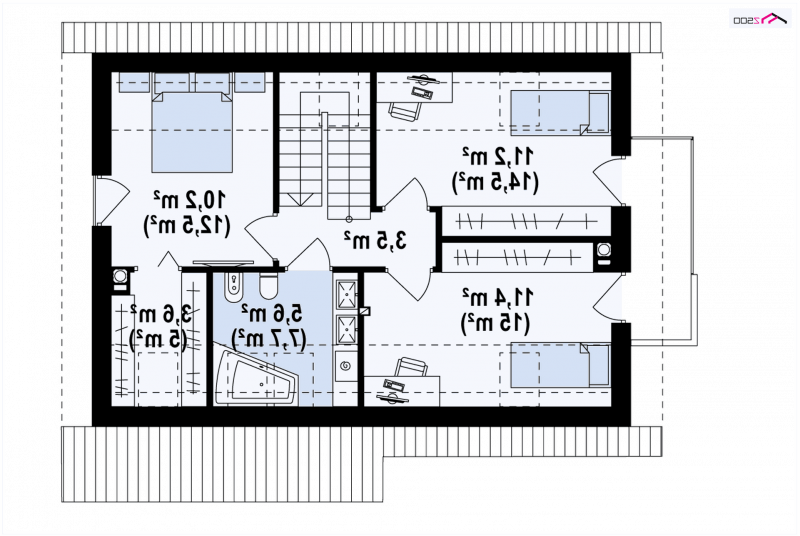
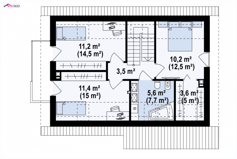
Wygodny salon z dużą kuchnią tworzą jednoprzestrzenną strefę dzienną. Z kuchni można łatwo wydzielić miejsce na podręczną spiżarkę. Strefę jadalni zaplanowano w pobliżu kominka, przy oknie balkonowym z widokiem na ogród. W ciepłe dni można łatwo i wygodnie przenieść rodzinny posiłek na częściowo osłonięty taras. Zaletą projektu jest stosunkowo duże pomieszczenie gospodarcze oraz wygodne schody ze spocznikiem. Pokój na parterze z wyjściem na taras sprawdzi się idealnie jako gabinet lub dodatkowa sypialnia. Dodatkowym atutem jest duże wc z miejscem na kabinę. W strefie nocnej na poddaszu zaplanowano trzy sypialnie oraz komfortową łazienkę. W pokoju gospodarzy przewidziano miejsce na pojemną garderobę.
Z225 dodatkowo można rozbudować o stanowisko garażowe z praktycznym przejściem przez pom. gospodarcze.
Dbamy o swoich Klientów, jak nikt inny!
Do każdego projektu zakupionego za pośrednictwem serwisu kreoDOM.pl otrzymasz książeczkę z rabatami na zakupy w firmach Komfort, Fachowiec, Domino Łazienki, Komandor, Witek Home i innych. Książeczka na pewno okaże się przydatna podczas urządzania Twojego wymarzonego domu!
Książeczka z rabatami do takich firm jak: Komfort, Domino Łazienki, Fachowiec, Vox, Komandor, Witek Home i innych
Gwarancja
bezpiecznych zakupów
Dodatkowe pakiety projektowe
- Kosztorys inwestorski 249,00zł
- Zestawienie materiałów 57,00 zł
- Wentylacja mechaniczna z rekuperacja 550,00 zł
- Pompa ciepła 250,00 zł
- Kotłownia na paliwo stałe zapytaj o dostępność
- Ogrzewanie podłogowe 350,00 zł
- Kolektory słoneczne 250,00 zł
- Przydomowa oczyszczalnia ścieków 350,00 zł
- Wersja elektroniczna projektu 197,00 zł
- Dodatkowy egzemplarz projektu 249,00 zł