Dane techniczne
- Powierzchnia użytkowa 118.98 m²
- Powierzchnia zabudowy 86.44 m²
- Kubatura 355.35 m³
- Kąt nachylenia dachu 40.00°
- Powierzchnia dachu 154.60 m²
- Wysokość budynku 7.53 m
- Min. wymiary działki 16.34x18.64 m
- Pracownia Studio Z500
Technologia budowy
Ściany: gazobeton, ceramika, silikaty
Dach: dachówka, blachodachówka
Strop: betonowy gęstożebrowy Teriva
Opis
Projekt Z267 to funkcjonalny dom piętrowy o zgrabnej bryle i dwuspadowym dachu. Wykończenie elewacji ciekawymi materiałami powoduje, że dom wygląda schludnie i estetycznie.
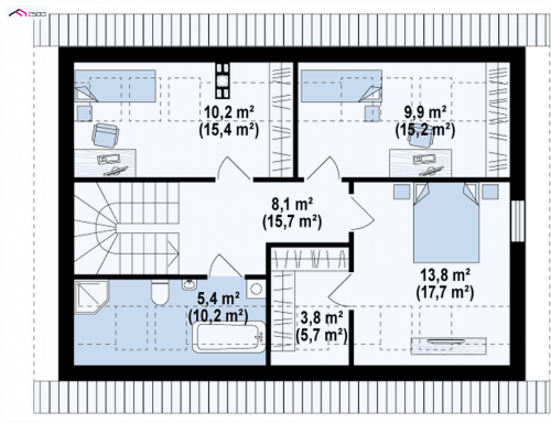
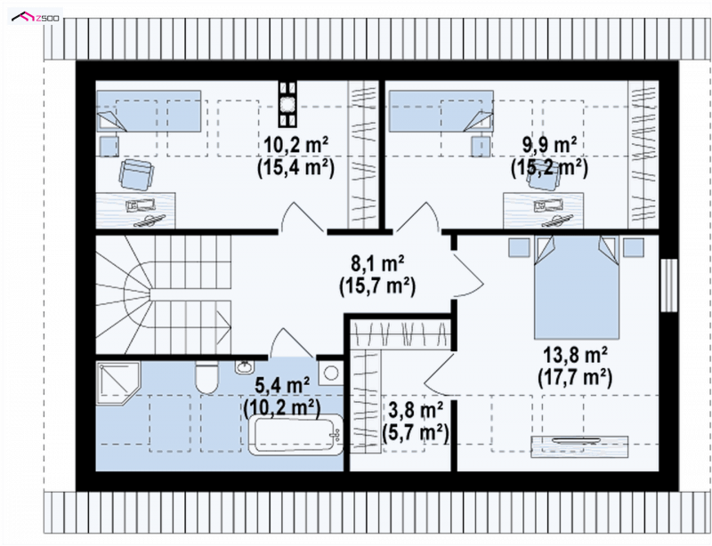
Parter to strefa dzienna domowników. Zlokalizowano tu jednoprzestrzennie połączony salon z jadalnią i z kuchnią, dużą łazienkę, sień z miejscem na szafę oraz pomieszczenie gospodarcze. Na piętrze natomiast znajdują się trzy sypialnie, w tym jedna z osobną garderobą, a także łazienka, która pomieści zarówno prysznic, jak i wannę.
Z267 to idealna inwestycja dla tych, którzy poszukują niedużego domu, spełniającego wiele praktycznych funkcji.
Dbamy o swoich Klientów, jak nikt inny!
Do każdego projektu zakupionego za pośrednictwem serwisu kreoDOM.pl otrzymasz książeczkę z rabatami na zakupy w firmach Komfort, Fachowiec, Domino Łazienki, Komandor, Witek Home i innych. Książeczka na pewno okaże się przydatna podczas urządzania Twojego wymarzonego domu!
Książeczka z rabatami do takich firm jak: Komfort, Domino Łazienki, Fachowiec, Vox, Komandor, Witek Home i innych
Gwarancja
bezpiecznych zakupów
Dodatkowe pakiety projektowe
- Kosztorys inwestorski 249,00zł
- Zestawienie materiałów 57,00 zł
- Wentylacja mechaniczna z rekuperacja 550,00 zł
- Pompa ciepła 250,00 zł
- Kotłownia na paliwo stałe zapytaj o dostępność
- Ogrzewanie podłogowe 350,00 zł
- Kolektory słoneczne 250,00 zł
- Przydomowa oczyszczalnia ścieków 350,00 zł
- Wersja elektroniczna projektu 197,00 zł
- Dodatkowy egzemplarz projektu 249,00 zł