Dane techniczne
- Powierzchnia użytkowa 132.87 m²
- Powierzchnia zabudowy 128.40 m²
- Kubatura 397.80 m³
- Kąt nachylenia dachu 30.00°
- Powierzchnia dachu 168.32 m²
- Wysokość budynku 7.31 m
- Min. wymiary działki 18.49x20.24 m
- Pracownia Studio Z500
Technologia budowy
Ściany: gazobeton, ceramika, silikaty
Strop: betonowy, gęstożebrowy
Dach: dachówka, blachodachówka
Opis
Z273 Ph + st to kompaktowy dom parterowy z poddaszem użytkowym o prostej bryle przekrytej dachem kopertowym.
Do domu wchodzimy z podcienia wejściowego. W sieni zaplanowano miejsce na pojemną szafę. Dalej możemy dostać się na lewo do części reprezentacyjnej lub na prawo do strefy prywatnej domowników. Część dzienna to komfortowy salon z jadalnią, centralnie umieszczonym kominkiem, dużymi przeszkleniami oraz wyjściem na zadaszony taras. Całość dopełnia ustawna, wygodna kuchnia. W drugiej części domu zaprojektowano trzy podobnej wielkości pokoje. Dwie łazienki podniosą komfort użytkowania. Duża z oknem, mniejszą w razie potrzeby można zamienić na garderobę, spiżarnię czy podręczny schowek.
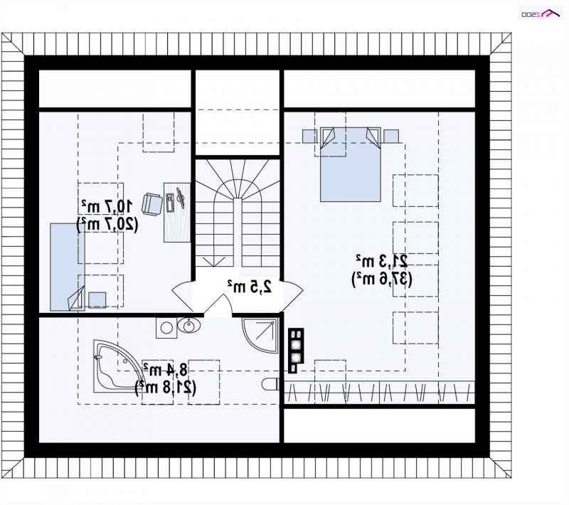
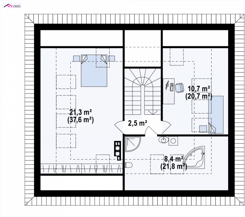
Poddasze to dwa dodatkowa dodatkowe pokoje oraz duża przestronna łazienka. Pomieszczenia zostały doświetlone oknami dachowymi.
Zaletą projektu jest prosta konstrukcja - tylko jedna ściana konstrukcyjna wewnątrz pozwala na niemal dowolną aranżację wnętrza.
Dbamy o swoich Klientów, jak nikt inny!
Do każdego projektu zakupionego za pośrednictwem serwisu kreoDOM.pl otrzymasz książeczkę z rabatami na zakupy w firmach Komfort, Fachowiec, Domino Łazienki, Komandor, Witek Home i innych. Książeczka na pewno okaże się przydatna podczas urządzania Twojego wymarzonego domu!
Książeczka z rabatami do takich firm jak: Komfort, Domino Łazienki, Fachowiec, Vox, Komandor, Witek Home i innych
Gwarancja
bezpiecznych zakupów
Dodatkowe pakiety projektowe
- Kosztorys inwestorski 249,00zł
- Zestawienie materiałów 57,00 zł
- Wentylacja mechaniczna z rekuperacja 550,00 zł
- Pompa ciepła 250,00 zł
- Kotłownia na paliwo stałe zapytaj o dostępność
- Ogrzewanie podłogowe 350,00 zł
- Kolektory słoneczne 250,00 zł
- Przydomowa oczyszczalnia ścieków 350,00 zł
- Wersja elektroniczna projektu 197,00 zł
- Dodatkowy egzemplarz projektu 249,00 zł